夜间模式
  • 74486阅读
  • 18回复

[装修讨论]近期在关注日式风,你们感觉怎么样? [复制链接]

上一主题 下一主题
离线喃喃有话
级别: 昆山过客
发帖
40
昆币
62 枚
只看楼主 使用道具 电梯直达
楼主  发表于: 2021-05-07 , 来自:江苏省0==
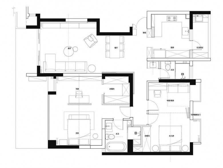
推荐日式风看看,最近喜欢木质感的设计?不知道日式风预算会不会很高,对木材的要求是不是很高才能出效果?

120平
本帖评分记录
昆山伟宏门窗 昆币 +1 -来自昆山论坛APP 2021-05-08
蛮好德装饰 昆币 +5 我很赞同 2021-05-07
2条评分昆币+6
爆料有奖!关注昆山论坛抖音号,抖音搜索“昆山论坛”,或搜索抖音号:ksbbs
 
离线jiaosong8
级别: 昆山新人
发帖
121
昆币
185 枚
沙发  发表于: 2021-05-07 , 来自:江苏省0==
我看到的日式风很少 北欧风倒是不少
爆料有奖!关注昆山论坛抖音号,抖音搜索“昆山论坛”,或搜索抖音号:ksbbs
 
帅哥离线桥下村中和堂
级别: 昆山名人

发帖
30739
昆币
34551 枚
板凳  发表于: 2021-05-07 , 来自:江苏省0==
移门榻榻米
爆料有奖!关注昆山论坛抖音号,抖音搜索“昆山论坛”,或搜索抖音号:ksbbs
 
帅哥离线印象水仙设计
级别: 家装商家
发帖
11313
昆币
19365 枚
地板  发表于: 2021-05-07 , 来自:江苏省0==
说在前边

本案初次与我们沟通的是男屋主,是一个温暖中充满坚定的人。目前常住屋主一人,女儿与妻子在外地,偶尔回家小住。虽然家人目前都不在身边,屋主还是坚定的要重新装修一下。他希望家人回家的时候,有一个温暖舒适的家是在等着他们。在定了设计之后,女屋主表达装修男屋主说了算,对于这一决定我们感受到这个家庭温暖和睦的一面,也让我们的后期的设计工作的推进,顺利不少。

我们在接到这套案子的委托设计后,将原有空间布局进行打撒重组,重新梳理了主卧与女儿+多功能房(暂为女儿书房)。设计中大量应用纯白与原木色系,打造一个舒适放松的原木系居住空间。

实景完工毕业照,看看哦。








爆料有奖!关注昆山论坛抖音号,抖音搜索“昆山论坛”,或搜索抖音号:ksbbs
 
帅哥离线华易达装饰
发帖
1086
昆币
1864 枚
4楼 发表于: 2021-05-07 , 来自:江苏省0==
您是哪里的小区?什么户型?
爆料有奖!关注昆山论坛抖音号,抖音搜索“昆山论坛”,或搜索抖音号:ksbbs
 
离线朗通装饰
级别: 家装商家

发帖
16956
昆币
14173 枚
5楼 发表于: 2021-05-07 , 来自:江苏省0==
您好,欢迎关注朗通装饰










爆料有奖!关注昆山论坛抖音号,抖音搜索“昆山论坛”,或搜索抖音号:ksbbs
 
发帖
1131
昆币
1263 枚
6楼 发表于: 2021-05-07 , 来自:江苏省0==
欢迎关注我们,有案例,有需求可以联系,给您出个报价和方案看看
爆料有奖!关注昆山论坛抖音号,抖音搜索“昆山论坛”,或搜索抖音号:ksbbs
 
发帖
1476
昆币
734 枚
7楼 发表于: 2021-05-07 , 来自:江苏省0==
原木不错的,有禅意
爆料有奖!关注昆山论坛抖音号,抖音搜索“昆山论坛”,或搜索抖音号:ksbbs
 
帅哥离线从新来过2021
发帖
599
昆币
761 枚
8楼 发表于: 2021-05-07 , 来自:未知0==
已私信,有需求可以联系,帮您出方案和方案
爆料有奖!关注昆山论坛抖音号,抖音搜索“昆山论坛”,或搜索抖音号:ksbbs
 
美女离线昆山伟宏门窗
级别: 禁止发言

发帖
18978
昆币
32400 枚
9楼 发表于: 2021-05-08 , 来自:江苏省0==
用户被禁言,该主题自动屏蔽!
爆料有奖!关注昆山论坛抖音号,抖音搜索“昆山论坛”,或搜索抖音号:ksbbs
 
快速回复
限76 字节
批量上传需要先选择文件,再选择上传
 
上一个 下一个