夜间模式
  • 7626阅读
  • 1回复

[装修]喜欢日式风的宝宝,快来欣赏一家他们家完工实景~ [复制链接]

上一主题 下一主题
帅哥离线印象水仙设计
级别: 家装商家
发帖
11308
昆币
19358 枚
只看楼主 使用道具 电梯直达
楼主  发表于: 2021-05-08 , 来自:江苏省0==
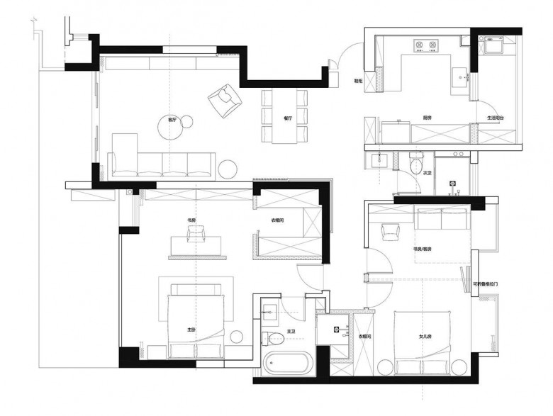
我们在接到这套案子的委托设计后,将原有空间布局进行打撒重组,重新梳理了主卧与女儿+多功能房(暂为女儿书房)。设计中大量应用纯白与原木色系,打造一个舒适放松的原木系居住空间。








爆料有奖!关注昆山论坛抖音号,抖音搜索“昆山论坛”,或搜索抖音号:ksbbs
 
离线秀目黛眉
级别: 昆山过客
发帖
89
昆币
129 枚
沙发  发表于: 2021-05-08 , 来自:江苏省0==
收纳少了些
爆料有奖!关注昆山论坛抖音号,抖音搜索“昆山论坛”,或搜索抖音号:ksbbs
 
快速回复
限76 字节
批量上传需要先选择文件,再选择上传
 
上一个 下一个