夜间模式
打赏中心
每日签到
幸运转盘
论坛帮助
活动聚焦
手机客户端
道具中心
商家认证
勋章中心
诚信认证
快捷通道
关闭
您还没有登录,快捷通道只有在登录后才能使用。
立即登录
还没有帐号? 赶紧
注册一个
论坛首页
论坛导航
商家
招聘
装修
昆山优选
小红娘
分类信息
二手房
昆山视窗
登录
注册
找回密码
帖子
用户
版块
帖子
搜索
论坛首页
>
论坛导航
>
昆山商情
>
三十而已 仍是少年 104㎡现代轻奢
发帖
回复
返回列表
新帖
图片投票
9182
阅读
0
回复
[装修]
三十而已 仍是少年 104㎡现代轻奢
[复制链接]
扫描到手机
论坛小编教你如何扫二维码
上一主题
下一主题
帅哥离线
印象水仙设计
UID:788292
注册时间
2017-05-09
最后登录
2025-10-11
发帖
11306
搜Ta的帖子
精华
0
昆币
19355
访问TA的空间
加好友
用道具
级别:
家装商家
发帖
11306
昆币
19355 枚
加关注
发消息
只看楼主
使用道具
电梯直达
楼主
发表于: 2021-05-11
,
来自:江苏省
0==
“快节奏的生活让我们每天都离不开“忙碌”二字,行程也大多是工作相关,所以我们很珍惜一家三口同时在家的时间,希望新家可以不要那么复杂,简单纯粹一些。”
My
Ideal life
➤ 项目细则
面积 / 104㎡
风格 / 现代轻奢
户型 / 三室两厅一厨两卫
硬装设计 / 印象水仙
软装设计 / 印象水仙
施工单位 / 印象水仙
本案是一套三口之家的新居,空间的打造围绕轻松、简单、时尚感展开。改变生活方式,提升生活品质,在这样的空间里开启对未来生活的美好探索,让家成为治愈家人的永久港湾。
现代轻奢风格正好满足主家的喜好,搭配幽默风趣的壁画,营造出一个有趣高级的空间,一家人的快乐寄托于此,这个家的整体色调以灰色、白色、黑色为主,金色点缀,材质以皮革为主,色调与材质都让空间表达出一种纯粹的净;虽然主家已过三十,已经有了可爱的女儿,但在这样一个简单纯粹的空间里,他和她,都还是曾经那个少年/少女。
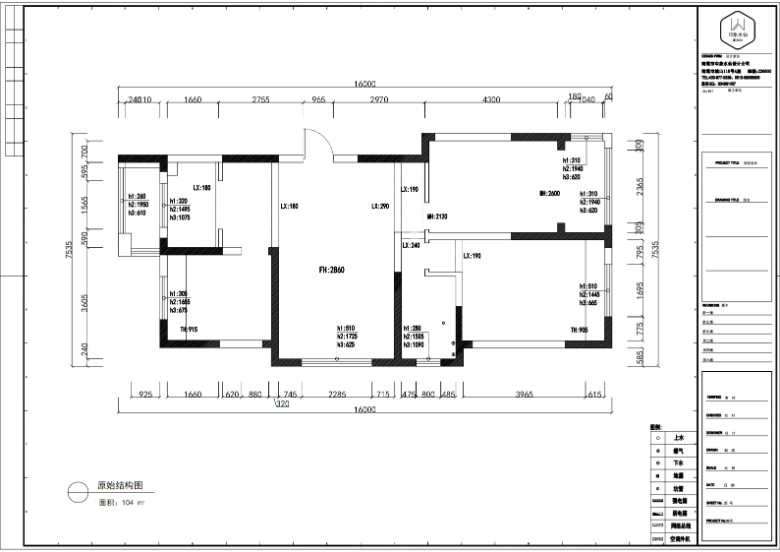
原始结构图
平面布置图
LOBBY
双手推开大门,进入自己的世界。这里的每一块砖、每一件家具、每一个物件,都是自己精心挑选而来到这里的,把所有的喜欢都放在家里,与生活来一场约会。
LIVING ROOM
放眼望去,整个客厅轻奢韵味浓郁,这都得益于设计师精心挑选的各类“有质感”的材料,例如金属线条、主吊灯、大理石、小装饰等等。
绿色谷仓门里面是一个单独的衣帽间,设计师合理利用每一处空间,美观又实用。
屋主喜欢石材的质感,用于公共空间恰好可以凸显空间气质。但是比例需仔细把控,否则太少不易出效果,太过则显得冷清,所以设计师用电视柜与之搭配,从材质上丰富空间韵味。
DINING ROOM
进门处的餐厅尽管占地不多,却因精心挑选的餐桌椅而充满了仪式感。在屋主的生活观里,享受生活从享受美食开始,每一餐都值得用心对待。
餐厅卡座结合餐边柜的设计,用色上美化了空间,又提升实用性,方便屋主收纳。
用餐环境,情调满满。
KITCHEN
厨房U型操作台面让屋主可以“大展身手”,非常方便,橱柜选择深浅两色可以丰富空间层次,而其利落的线条又不会觉得太过繁复。
BEDROOM 1
这里属于自己的静谧空间,让生活简单且诗意。
不对称的床头圆形吊灯自带艺术气息,软装装点也为整个卧室带来灵动,与硬装稳重气质相得益彰。
BEDROOM 2
KIDS ROOM
留驻梦幻奇想的童心时光,又极具个性丰盈的前卫格调,充满的少女感的儿童房里,兼具粉色渲染的柔和与现代设计的硬朗。
同时,写字台的设置给房间带来更多的实用性。
WASH ROOM
高级沉稳的暗色系装饰,颜色延续了公共区域色块,于细节之处展现美感设计。
[ 此帖被印象水仙设计在2021-05-11 18:08重新编辑 ]
本帖评分记录
共
条评分
热点推荐
昆山民用无人机试飞运行基地正式揭牌启用
难以想象!周末的陆杨粮仓人气竟然这么足
是不是说明以后昆山市区的老房子不会大拆大建
最近突然想把房子卖了买黄金,可行吗?
昆山农商银行2026校园招聘丨梦想已启航
融汇路和紫竹路交叉口,每天晚上在红绿灯路口直接停三排车
10月11日招聘:厨师.客房保洁员.仓库管理.业务专员.普工.技术工.司机.主播.文员
跟着粉墨宝贝游巴城:邂逅江南水乡的昆曲雅韵
愉快的周末,在家做了好大女想吃的荆州麻辣烫
昆山论坛分类信息,昆山人的二手交易平台
庙泾河粉黛草区域的一些不文明现象,影响一整天的心情
我很骄傲我的队友,警察叔叔都竖大拇指
全城首发!低密豪宅专家绿城来了
更真实更放心!昆山论坛婚恋平台上线
关注昆山论坛抖音官方号ksbbs爆料有奖
昆山论坛招聘网,随时随地找工作
一秒极速下载昆山论坛APP,好玩
昆山分类信息重磅发布 闲置可以换钱
爆料有奖!关注昆山论坛抖音号,抖音搜索“昆山论坛”,或搜索抖音号:ksbbs
请点击【印象水仙室内设计】看更多实景作品集! 大Boss的电话(微信) 金钟 15962697359
回复
举报
发帖
回复
返回列表
http://sy.ksbbs.com
访问内容超出本站范围,不能确定是否安全
继续访问
取消访问
快速回复
限76 字节
批量上传需要先选择文件,再选择上传
您目前还是游客,请
登录
或
注册
进入高级模式
文字颜色
发 布
回复后跳转到最后一页
上一个
下一个
隐藏
快速跳转
社会民生
聚焦昆山
立法直通车
昆山分类信息
昆山市教育局
昆山公交集团
昆山市交通运输局
消费维权
美丽昆山
昆山百事通
文明昆山
全民反诈
城市生活
玉山广场
昆友圈
走遍天下
昆山招聘
KBS车友会
昆山体育
房产装修
房产大家谈
房产租售
酸甜苦辣话装修
生活资讯
家有儿女
美食天地
花草宠物
交友婚恋
闲花文字
数码摄影
认证商家
论坛商家
昆山商情
社区站务
论坛事务
删帖声明
关闭
关闭
选中
1
篇
全选
喜欢就打赏个小红包吧
请选择打赏金额
1元
5元
10元
30元
100元
200元
您是游客,登陆后可以使用赏金钱包
赏金钱包支付
微信扫码支付
赏
我要提现
用微信扫描二维码完成支付
电话:0512-57993030
工作日 8:30-17:00在线
广告热线:18012662666
紧急联系:18888186330