夜间模式
  • 8706阅读
  • 2回复

[装修]115㎡现代轻奢风,装修完工,让我们一起来看看 [复制链接]

上一主题 下一主题
帅哥离线印象水仙设计
级别: 家装商家
发帖
11306
昆币
19354 枚
只看楼主 使用道具 电梯直达
楼主  发表于: 2021-06-04 , 来自:江苏省0==



项 目 简 介

户型:三室两厅一厨一卫
风格:115㎡现代轻奢风
硬 装 设 计:印象水仙
软 装 设 计:印象水仙
施          工:印象水仙




本案是一套115平的三居室,是一个幸福的四口之家的暖心港湾,业主希望在住宅的设计中融入喜爱的现代轻奢风。

设计师以现代风格为基础,点缀以金属材质,体现出空间的轻奢质感。简约的线条与层次分明的色彩,勾勒出一个业主理想中的家。

原始结构图




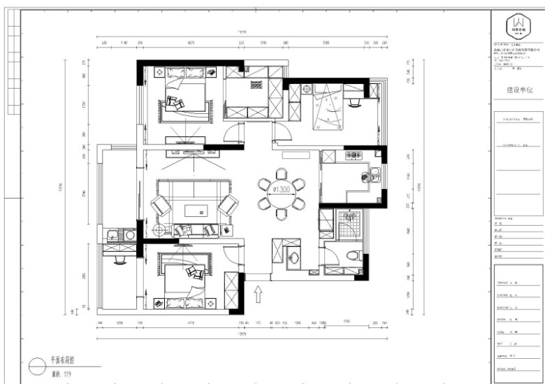
平面布置图




客  厅
1 / LIVINGROOM







客厅主打舒适放松感,皮质材质的沙发也根据空间统一了色调。在以灰色为主色调的基础上点缀了一丝黄、蓝色调,冷暖对比活跃了客厅氛围,给空间增加些许俏皮情调。




地面采用灰色地砖通铺,色系上延伸至灰色墙布铺贴的沙发背景墙以及大理石电视背景墙,让空间相互穿透并保持一定的界限。大理石背景墙两侧的硬包设计强化区域间层次的变化。




带动你的灵魂

去寻找到生命的春光




餐  厅
2 / DININGROON




餐厅,大理石机理的桌面自然袒露,皮质感的现代餐椅坐感舒适自然。入门鞋柜一体化的储物柜,将空间最大化的利用起来。




干净素雅的背景,挥洒出一个纯净的现代空间。




过  道
3 / CORRIDOR




过道顺延了客餐厅风格,尽头的一幅白马画使得空间增添了轻奢感。

厨  房
4 / KITCHEN




厨房与餐厅之间做了透明玻璃推拉门,很好的避免了油烟。U型台面,洗涤、料理、烹饪三不误。简约而单一的色彩,开阔整洁感强烈。

主  卧
5 / BEDROOM 1



主卧,灰色背景墙看起来十分优雅大方,再加上舒适的大床,金属的壁灯,增添一点时尚感。



衣帽间满足了女主人

关于美的所有期待。



主  卧
6 / BEDROOM 2



次卧风格雅致柔和,明快的暖色调让空间快速“升温”,柔软舒适的床,打造温馨的睡眠空间。



儿 童 房
7 / KIDSROOM



儿童房,以粉色作为主色调。减少刺眼和俗气,所以一切都得“淡淡”的来~

洗 手 间
8  / TOILRT



卫生间,洗手盆独立在卫生间门外的设计,浴镜旁边的墙面贴上灰色小方块砖,让空间更具时尚感。
爆料有奖!关注昆山论坛抖音号,抖音搜索“昆山论坛”,或搜索抖音号:ksbbs
 
离线changhe666
级别: 昆山过客
发帖
48
昆币
75 枚
沙发  发表于: 2021-06-04 , 来自:江苏省0==
漂亮
爆料有奖!关注昆山论坛抖音号,抖音搜索“昆山论坛”,或搜索抖音号:ksbbs
 
帅哥离线印象水仙设计
级别: 家装商家
发帖
11306
昆币
19354 枚
板凳  发表于: 2021-06-05 , 来自:江苏省0==
方案对接中~
爆料有奖!关注昆山论坛抖音号,抖音搜索“昆山论坛”,或搜索抖音号:ksbbs
 
快速回复
限76 字节
如果您提交过一次失败了,可以用”恢复数据”来恢复帖子内容
 
上一个 下一个