夜间模式
  • 13475阅读
  • 6回复

[装修]精装房全拆改造,138㎡轻奢新宅完工实景,猜猜价格 [复制链接]

上一主题 下一主题
帅哥离线印象水仙设计
级别: 家装商家
发帖
11306
昆币
19354 枚
只看楼主 使用道具 电梯直达
楼主  发表于: 2021-07-03 , 来自:江苏省0==




一个家,
便是一个故事。
每一个故事情境的递进,
入户伴随着艺术画和鲜花,
生活在这里,是需要仪式感的。


| 合影 |






项目面积 | Area ➤ 138㎡
项目风格 | Style ➤ 轻奢
项目户型 | House type ➤三室两厅两卫
设计单位 | Design ➤印象水仙
施工单位 | Construction ➤印象水仙

本案是精装房改造
一家五口人居住
一家人对本次装修的生活品质有着较高要求
不希望千篇一律的设计,最终找到了我们


风格以现代轻奢为审美考量
白色、咖色、金色,让家里多了柔和的气息
硬包、金属线条的运用划分墙面空间
增加了一份精致感

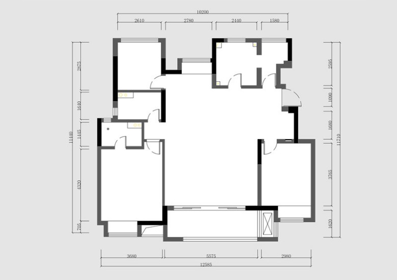
| 原始结构彩图 |






本案精装全部拆除重装的哦,空间格局上的改造主要在于入户、厨房、餐厅这三个区域,通过拆墙、砌墙的布局,不仅有了入户玄关及鞋柜收纳功能,开放式的餐厨更是延伸了空间视觉。其他区域的设计参考下方的平面布置彩图及完工实景哦。


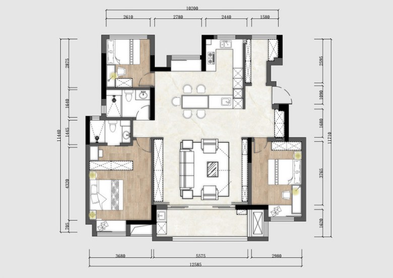
| 平面布置彩图 |






LOBBY | 玄关






改造后的玄关处拥有了一处步入式收纳空间,满足了主家进门换鞋及收纳的需求,绚丽的艺术壁画,结合浅色明净的空间下,进门就能触发对室内生活场景的生动演绎。


LIVING ROOM | 客厅






客厅,纯粹轮廓下的安静世界。恰到好处的留白与尺度营造出恬静宜人的生活场景,轻柔慵懒的阳光透过洁白的窗帘折射到原木地板上,一股惬意油然而生。






客厅选用白色皮质沙发,千鸟格脚凳,结合两个不同大小的圆形茶几,金属落地灯的选择更是锦上添花,空间的精致感进一步提升。






沙发背景一侧,做了一整排收纳柜,不注意看还以为硬包呢,嘻嘻,美观又实用啦。






闲暇时一杯清茶配上一本好书,将平凡寡淡的日子过得热气腾腾。所谓的精致,其实还是骨子里的生活态度。










DINING ROOM | 餐厅






餐厨一体的空间格局,将严谨的功能性与诗意的美观性结为一体,线条流畅简洁,灰色、粉色的餐椅,为空间注入了丰富的趣味性。





中岛吧台设计前卫时尚,已成为时下年轻人追捧的元素之一。中岛台与餐桌连在一起,白色高柜的设计,美观的同时更是满足了主家对用餐空间的收纳,温润的大理石、一排金色的艺术吊灯,打造极具品味的用餐环境。






BALCONY | 阳台






和煦的光线透过窗帘轻洒于阳台空间,于安逸的氛围中感受一束光的温柔。


MASTER BEDROOM | 主卧






主卧选用粉色与白色搭配,紫色调色窗帘点缀空间,金属壁灯,盎然有趣,粉紫色拼色床品,流露出一丝丝温柔。





空间足够的基础上,砌墙改造出一侧开放式衣帽间的空间,主家可以在这个空间更衣、化妆等,满足了主家所有对主卧应有的所有幻想。白色谷仓门的选用,节省了空间的同时体现出空间的高级感。









SECOND ROOM






次卧简洁又不失格调,以柔软的织品,温柔的色调设计呈现舒适的视觉效果,打造温暖宜居的睡眠空间。


CHILDREN'S ROOM | 儿童房






儿子房通过颜色和材质的搭配扩大视觉的空间感,同时增加学空间,墙上的白色隔板和书桌及飘窗的设计,让孩子于此感受学的乐趣。


WASH ROOM | 卫浴


主卫






次卫






以简单的黑白灰搭配出时尚的洗浴空间,更符合年轻人的审美。
本帖评分记录
荣瑶 昆币 +1 -来自昆山论坛APP 2021-07-03
1条评分昆币+1
爆料有奖!关注昆山论坛抖音号,抖音搜索“昆山论坛”,或搜索抖音号:ksbbs
 
离线gaiqiao7
级别: 昆山新人
发帖
245
昆币
465 枚
沙发  发表于: 2021-07-03 , 来自:江苏省0==
45w    ?
爆料有奖!关注昆山论坛抖音号,抖音搜索“昆山论坛”,或搜索抖音号:ksbbs
 
发帖
6918
昆币
6420 枚
板凳  发表于: 2021-07-03 , 来自:江苏省0==
欢迎关注
咨询电话:15050259198
【寅盛装饰无毒家装】装修不环保砸掉重做,昆山十年,口碑见证!
公司官网:[url][urlend2]
VR案例:[url][urlend2]
精品案例:[url][urlend2]
城东店:昆山市太湖路588号,左岸尚海湾3-103商铺 ( 近震川东路,阳光水世界对面 )
昆山城北店:昆山市柏庐北路94号( 柏庐大桥向北200米左右 )
爆料有奖!关注昆山论坛抖音号,抖音搜索“昆山论坛”,或搜索抖音号:ksbbs
 
帅哥离线海豚6
级别: 昆山新人
发帖
129
昆币
168 枚
地板  发表于: 2021-07-03 , 来自:江苏省0==
我猜全包25哈哈哈
本帖评分记录
足音无迹 昆币 +1 -来自昆山论坛APP 2021-07-04
印象水仙设计 昆币 +1 -来自昆山论坛APP 2021-07-04
2条评分昆币+2
爆料有奖!关注昆山论坛抖音号,抖音搜索“昆山论坛”,或搜索抖音号:ksbbs
 
帅哥离线印象水仙设计
级别: 家装商家
发帖
11306
昆币
19354 枚
4楼 发表于: 2021-07-04 , 来自:江苏省0==
gaiqiao7:45w    ? (2021-07-03 13:39) 

没有哒
本帖评分记录
足音无迹 昆币 +1 -来自昆山论坛APP 2021-07-04
1条评分昆币+1
爆料有奖!关注昆山论坛抖音号,抖音搜索“昆山论坛”,或搜索抖音号:ksbbs
 
离线足音无迹
级别: 昆山新人
发帖
310
昆币
445 枚
5楼 发表于: 2021-07-04 , 来自:江苏省0==
海豚6:我猜全包25哈哈哈 (2021-07-03 21:42) 

应该不止,现在整木可贵了
爆料有奖!关注昆山论坛抖音号,抖音搜索“昆山论坛”,或搜索抖音号:ksbbs
 
帅哥离线新人到位
发帖
1825
昆币
2517 枚
6楼 发表于: 2021-07-06 , 来自:江苏省0==
36万差不多了
爆料有奖!关注昆山论坛抖音号,抖音搜索“昆山论坛”,或搜索抖音号:ksbbs
 
快速回复
限76 字节
如果您提交过一次失败了,可以用”恢复数据”来恢复帖子内容
 
上一个 下一个