夜间模式
  • 226912阅读
  • 97回复

记录老房拆旧重新装修 03年的老房子,多层的二楼 [复制链接]

上一主题 下一主题
离线化紫
级别: 昆山新人
发帖
310
昆币
480 枚
只看楼主 使用道具 电梯直达
楼主  发表于: 2021-08-04 , 来自:江苏省0==
记录老房拆旧重新装修

03年的老房子,多层的二楼,一楼是自行车库,建筑面积126,有装修,考虑到自住,所以全部拆除重装。

找了三家装修公司,老公最后定了朗通。
先付了设计定金,出了效果图和报价。
为了知道哪些是非承重墙可以砸,去档案馆拉了原始建筑图纸,另外一张是装修公司的设计图纸。
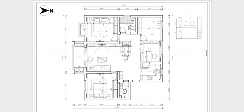
原始户型图如下:

找了三家家装公司,

本帖评分记录
垂丝逸影 昆币 +1 -来自昆山论坛APP 2022-03-19
高维豪 昆币 +1 -来自昆山论坛APP 2021-08-09
荣盛门窗 昆币 +1 -来自昆山论坛APP 2021-08-06
昆山伟宏门窗 昆币 +1 -来自昆山论坛APP 2021-08-06
论坛巡察员 昆币 +37 鼓励分享 2021-08-05
装修版客服 昆币 +10 鼓励分享 2021-08-05
6条评分昆币+51
爆料有奖!关注昆山论坛抖音号,抖音搜索“昆山论坛”,或搜索抖音号:ksbbs
 
离线化紫
级别: 昆山新人
发帖
310
昆币
480 枚
沙发  发表于: 2021-08-04 , 来自:江苏省0==
上周正式开工,原计划有墙体改动,一是北边的小房间要扩大,二是厨房门洞方向改变。考虑到是老房,于是放弃了小房间改大的方案,但是希望厨房门能换个方向。于是几次去物业询问能否改门洞,告知不知道,但最好不要。老公去住建局询问,被建议尽量不改。开工前又去居委会报备,昨天正式铲墙了,终于被明确告知不能改,并且说下午去看看,最后还是没人去看。可能要放弃厨房改门的方向了。买房时中介说这是现浇房,现在才知道其实也是砖混。师傅工作很快,昨天墙铲好了。





爆料有奖!关注昆山论坛抖音号,抖音搜索“昆山论坛”,或搜索抖音号:ksbbs
 
离线化紫
级别: 昆山新人
发帖
310
昆币
480 枚
板凳  发表于: 2021-08-04 , 来自:江苏省0==
大家看一下,厨房的门能开在南面的墙上吗?我用圈标出的地方没有梁,这里开个单门洞不可以吗?
爆料有奖!关注昆山论坛抖音号,抖音搜索“昆山论坛”,或搜索抖音号:ksbbs
 
离线willingme
发帖
1083
昆币
1236 枚
地板  发表于: 2021-08-04 , 来自:江苏省0==
观后续
爆料有奖!关注昆山论坛抖音号,抖音搜索“昆山论坛”,或搜索抖音号:ksbbs
 
帅哥离线安于戏命
级别: 昆山过客
发帖
34
昆币
48 枚
4楼 发表于: 2021-08-04 , 来自:江苏省0==
请问全包还是半包啥价格
爆料有奖!关注昆山论坛抖音号,抖音搜索“昆山论坛”,或搜索抖音号:ksbbs
 
离线化紫
级别: 昆山新人
发帖
310
昆币
480 枚
5楼 发表于: 2021-08-05 , 来自:江苏省0==
安于戏命:请问全包还是半包啥价格 (2021-08-04 23:38) 

全包20万
爆料有奖!关注昆山论坛抖音号,抖音搜索“昆山论坛”,或搜索抖音号:ksbbs
 
发帖
6918
昆币
6420 枚
6楼 发表于: 2021-08-05 , 来自:江苏省0==
恭喜楼主开工大吉
欢迎关注
【寅盛装饰无毒家装】装修不环保砸掉重做,昆山十年,口碑见证!
公司官网:[url][urlend2]  
VR案例:[url][urlend2]
精品案例:[url][urlend2]  
城东店:昆山市太湖路588号,左岸尚海湾3-103商铺 ( 近震川东路,阳光水世界对面 )
昆山城北店:昆山市柏庐北路94号( 柏庐大桥向北200米左右 )



爆料有奖!关注昆山论坛抖音号,抖音搜索“昆山论坛”,或搜索抖音号:ksbbs
 
美女离线装修版客服
发帖
10174
昆币
22137 枚
7楼 发表于: 2021-08-05 , 来自:江苏省0==
恭喜楼主开工大吉,后期也要从来分享哦
爆料有奖!关注昆山论坛抖音号,抖音搜索“昆山论坛”,或搜索抖音号:ksbbs
 
美女离线昆山飞宇门窗
级别: 禁止发言
发帖
490
昆币
551 枚
8楼 发表于: 2021-08-05 , 来自:江苏省0==
用户被禁言,该主题自动屏蔽!
爆料有奖!关注昆山论坛抖音号,抖音搜索“昆山论坛”,或搜索抖音号:ksbbs
 
发帖
1475
昆币
733 枚
9楼 发表于: 2021-08-05 , 来自:江苏省0==
恭喜楼主啊,后期家里美缝可以关注我哦
爆料有奖!关注昆山论坛抖音号,抖音搜索“昆山论坛”,或搜索抖音号:ksbbs
 
快速回复
限76 字节
如果您提交过一次失败了,可以用”恢复数据”来恢复帖子内容
 
上一个 下一个