夜间模式
  • 73131阅读
  • 13回复

[装修讨论]人到中年,养老居所的装修之旅 [复制链接]

上一主题 下一主题
帅哥离线猪十八戒
级别: 昆山名人

发帖
37670
昆币
53684 枚
只看楼主 使用道具 电梯直达
楼主  发表于: 2021-09-23 , 来自:江苏省0==
孩子高考结束,不用早晚奔波在接送之路上了,人一下子空闲许多。现在的居所也住了差不多有七八年了,前几天水龙头失灵找人修了修,看看门口墙皮有些擦碰脱落,放自行车的地方还有很多印痕。考虑下换个居住环境,也许会有新的心境。
本帖评分记录
荣盛门窗 昆币 +1 -来自昆山论坛APP 2021-09-24
昆山伟宏门窗 昆币 +1 -来自昆山论坛APP 2021-09-23
记忆的证明58 昆币 +1 -来自昆山论坛APP 2021-09-23
3条评分昆币+3
爆料有奖!关注昆山论坛抖音号,抖音搜索“昆山论坛”,或搜索抖音号:ksbbs
 
帅哥离线猪十八戒
级别: 昆山名人

发帖
37670
昆币
53684 枚
沙发  发表于: 2021-09-23 , 来自:江苏省0==
好像放错了版块,版主能帮忙移到装修日记版块吗
[ 此帖被壹玖在2021-09-23 16:47重新编辑 ]
爆料有奖!关注昆山论坛抖音号,抖音搜索“昆山论坛”,或搜索抖音号:ksbbs
 
帅哥离线猪十八戒
级别: 昆山名人

发帖
37670
昆币
53684 枚
板凳  发表于: 2021-09-23 , 来自:江苏省0==
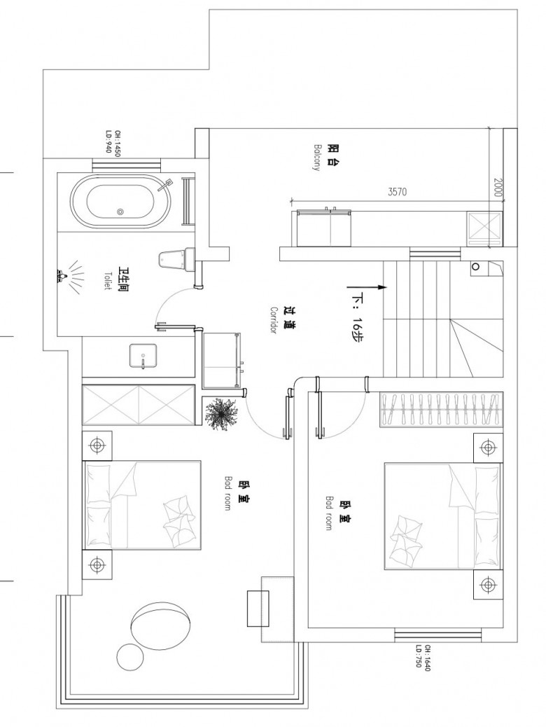
大概的布局,肯定要调整。初步的打算是全程参与练练手,自己住个四五年,然后给父母居住。四五年后我可能要跟着儿子和他就近居住,去哪里都是个未知数。草图是一二楼,三楼做工作间和露台,没什么布局就没画。日常居住1-3人,房间可能要去掉些。

爆料有奖!关注昆山论坛抖音号,抖音搜索“昆山论坛”,或搜索抖音号:ksbbs
 
美女离线昆山伟宏门窗
级别: 禁止发言

发帖
18978
昆币
32400 枚
地板  发表于: 2021-09-23 , 来自:江苏省0==
用户被禁言,该主题自动屏蔽!
爆料有奖!关注昆山论坛抖音号,抖音搜索“昆山论坛”,或搜索抖音号:ksbbs
 
帅哥离线猪十八戒
级别: 昆山名人

发帖
37670
昆币
53684 枚
4楼 发表于: 2021-09-23 , 来自:江苏省0==
昆山伟宏门窗:3千人住这么大房子[表情] (2021-09-23 18:03) 

待在家里的时间比较多,有时候要在家工作,所以空间上需要能安静不干扰。
爆料有奖!关注昆山论坛抖音号,抖音搜索“昆山论坛”,或搜索抖音号:ksbbs
 
离线大金毛
发帖
1919
昆币
4326 枚
5楼 发表于: 2021-09-23 , 来自:江苏省0==
楼主土豪,别野哦
爆料有奖!关注昆山论坛抖音号,抖音搜索“昆山论坛”,或搜索抖音号:ksbbs
 
帅哥离线猪十八戒
级别: 昆山名人

发帖
37670
昆币
53684 枚
6楼 发表于: 2021-09-23 , 来自:江苏省0==
大金毛:楼主土豪,别野哦 (2021-09-23 19:26) 

小时候住的筒子楼,靠围墙的小批间,煤球炉里的红烧肉,更香啊。
爆料有奖!关注昆山论坛抖音号,抖音搜索“昆山论坛”,或搜索抖音号:ksbbs
 
帅哥离线猪十八戒
级别: 昆山名人

发帖
37670
昆币
53684 枚
7楼 发表于: 2021-09-23 , 来自:江苏省0==
今日秋分
爆料有奖!关注昆山论坛抖音号,抖音搜索“昆山论坛”,或搜索抖音号:ksbbs
 
美女离线昆山伟宏门窗
级别: 禁止发言

发帖
18978
昆币
32400 枚
8楼 发表于: 2021-09-24 , 来自:江苏省0==
用户被禁言,该主题自动屏蔽!
爆料有奖!关注昆山论坛抖音号,抖音搜索“昆山论坛”,或搜索抖音号:ksbbs
 
级别: 禁止发言
发帖
565
昆币
657 枚
9楼 发表于: 2021-09-24 , 来自:江苏省0==
用户被禁言,该主题自动屏蔽!
爆料有奖!关注昆山论坛抖音号,抖音搜索“昆山论坛”,或搜索抖音号:ksbbs
 
快速回复
限76 字节
如果您提交过一次失败了,可以用”恢复数据”来恢复帖子内容
 
上一个 下一个