夜间模式
  • 299862阅读
  • 67回复

记录小窝的蜕变过程 [复制链接]

上一主题 下一主题
离线甜度超标
级别: 初来乍到
发帖
1
昆币
1 枚
10楼 发表于: 2022-03-03 , 来自:江苏省0==
恭喜恭喜开工
爆料有奖!关注昆山论坛抖音号,抖音搜索“昆山论坛”,或搜索抖音号:ksbbs
 
帅哥离线小熊系统门窗
级别: 昆山新人
发帖
197
昆币
8749 枚
11楼 发表于: 2022-03-03 , 来自:江苏省0==
恭喜恭喜,开工大吉
爆料有奖!关注昆山论坛抖音号,抖音搜索“昆山论坛”,或搜索抖音号:ksbbs
 
美女离线一朵兰花
级别: 昆山新人
发帖
231
昆币
237 枚
12楼 发表于: 2022-03-04 , 来自:江苏省0==
恭喜恭喜
爆料有奖!关注昆山论坛抖音号,抖音搜索“昆山论坛”,或搜索抖音号:ksbbs
 
美女离线昆山伟宏门窗
级别: 禁止发言

发帖
18978
昆币
32400 枚
13楼 发表于: 2022-03-05 , 来自:江苏省0==
用户被禁言,该主题自动屏蔽!
爆料有奖!关注昆山论坛抖音号,抖音搜索“昆山论坛”,或搜索抖音号:ksbbs
 
帅哥离线史矛戈
级别: 昆山过客
发帖
23
昆币
29 枚
14楼 发表于: 2022-03-07 , 来自:江苏省0==
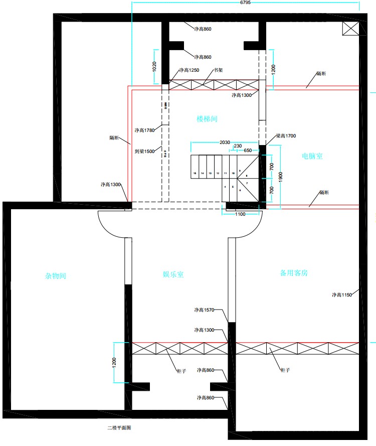
二楼是赠送的阁楼,没有上去的楼梯,只是在北面的一个房间的顶上开了一个口。
阁楼是斜顶的,面积跟楼下是相同的面积,只是边角高度比较低,也没有窗户,周围的立墙只有800MM左右,也没法装窗户,准备装几个排风扇。本来打算在顶上开天窗的,但是上面盖的有瓦,而且害怕后期漏水就放弃了。所以周围比较低(小于1.4米)的地方就隔起来放弃掉了,中间能用的地方大约在45个平方左右。大概的布局如下图。目前楼下的空间基本够用,楼上用的几率比较低,后期如果有其他的想法,再对阁楼进行改造。
中间能利用的地方是铺贴瓷砖,周围不怎么用的地方只是把地面清理干净,刷上地固,后期如果需要利用再说。

爆料有奖!关注昆山论坛抖音号,抖音搜索“昆山论坛”,或搜索抖音号:ksbbs
 
帅哥离线史矛戈
级别: 昆山过客
发帖
23
昆币
29 枚
15楼 发表于: 2022-03-07 , 来自:江苏省0==
阁楼的原始状态。目前能想到的用处是当做儿童游乐场



本帖评分记录
anqi 昆币 +1 -来自昆山论坛APP 2022-09-10
1条评分昆币+1
爆料有奖!关注昆山论坛抖音号,抖音搜索“昆山论坛”,或搜索抖音号:ksbbs
 
美女离线w785417616
级别: 昆山过客
发帖
67
昆币
75 枚
16楼 发表于: 2022-03-07 , 来自:江苏省0==
现在装修得咋样了
爆料有奖!关注昆山论坛抖音号,抖音搜索“昆山论坛”,或搜索抖音号:ksbbs
 
帅哥离线史矛戈
级别: 昆山过客
发帖
23
昆币
29 枚
17楼 发表于: 2022-03-07 , 来自:江苏省0==
在拆除、铲墙阶段。由于要做现浇楼梯,还要对阁楼的地板进行开孔。
爆料有奖!关注昆山论坛抖音号,抖音搜索“昆山论坛”,或搜索抖音号:ksbbs
 
帅哥离线史矛戈
级别: 昆山过客
发帖
23
昆币
29 枚
18楼 发表于: 2022-03-07 , 来自:江苏省0==
目前在拆除阶段。阁楼要做现浇楼梯,阁楼地板要开孔
墙铲的不是很干净,不知道有没有影响,后期不要墙皮脱落就好。




爆料有奖!关注昆山论坛抖音号,抖音搜索“昆山论坛”,或搜索抖音号:ksbbs
 
帅哥离线史矛戈
级别: 昆山过客
发帖
23
昆币
29 枚
19楼 发表于: 2022-03-07 , 来自:江苏省0==
有两个房间的这个墙垛是承重墙,午饭拆除,地面的是地台也无法拆除
如果能拆掉这个墙垛和地台,这个房间就完美了。
爆料有奖!关注昆山论坛抖音号,抖音搜索“昆山论坛”,或搜索抖音号:ksbbs
 
快速回复
限76 字节
批量上传需要先选择文件,再选择上传
 
上一个 下一个