|
|
楼主 发表于: 2022-03-25
, 来自:江苏省0==

纯 / 粹 / 空 / 间141㎡ 现代中式 ※ 户型 / 四室两厅二卫※ 硬装设计 / 印象水仙※ 软装设计 / 印象水仙 ※ 施工单位 / 印象水仙 经朋友介绍找到我们做设计的屋主夫妻是一对很特别的委托者,他们对于住宅并无明确的喜好及要求,需要考虑儿子后期婚房的一些需求,目前他们一般周末或逢年过节去居住,希望设计师可以给予专业意见,做出适合他们一家三口的设计。屋主夫妻工作非常忙碌,初次与设计师见面也只有草草几句聊天,几天后确定方案却令人意外地对设计师的方案一稿一见倾心,当日便决定将装修交由我们全权负责,而最终完工实景与原设计方案的还原度更是高达99.9%,整体空间,现代的硬装,禅意的软装,诗意雅韵且时尚。原始结构图
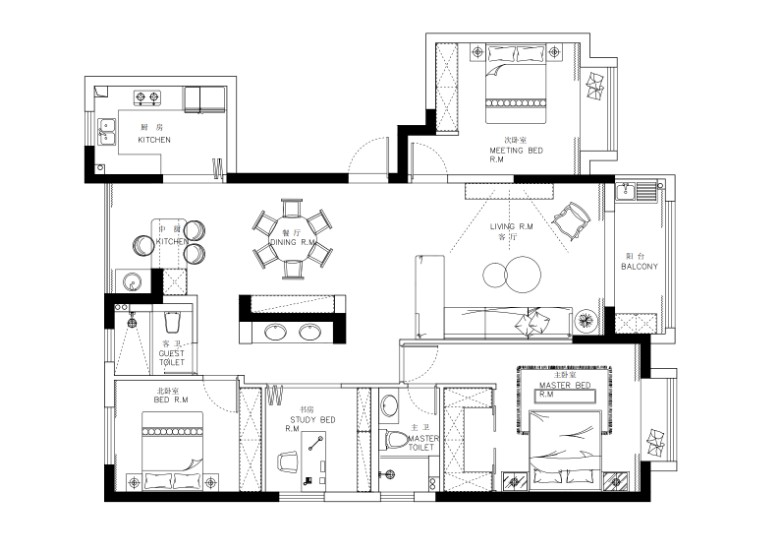
 平面布置图
 LIVING ROOM
 客厅的层次感分明,每一处线条都是恰到好处的勾勒。深色浅色的搭配,在光线的自然呈现下,显现出温馨的生活面貌。
 米白色的绿众木护墙板、质感满满的硬包背景以及精致的金属器件等多种材质的拿捏,亦是进退有度,静静谱写以现代中式为名的生活序曲。 质感的米白色皮质沙发、点缀其间的黑色茶几和单人椅、充满艺术气息的圆形中式风挂画,都在无声中诠释着主人的风范与品味。  在闲暇时刻,落座于墨绿色皮质单人椅,静心阅读,闭目小憩,每一个画面都优雅满分。 CORRIDOR 客餐厅以空间动线自然分割,蓝色调的延续,从视觉上给人和谐融洽的感觉。 DINING ROOM 餐区选择山水风圆形壁画,配以轻奢水晶吊灯,有形的美感散发而出;圆桌而立,家人闲坐,欢声笑语。在屋主的生活观里,享受生活从享受美食开始,每一餐都值得用心对待。 对于热爱烹饪的屋主来说,有一个专门的西厨区非常实用,净水器移到这里也可以增大厨房的使用空间,而简约的吧台设计除了强化设计感也令区域更为通透。 KITCHEN U型橱柜的设计让厨房的空间更合理化,增加操作空间,配备齐全的厨房家电,烹饪更舒心更方便。 BEDROOM 1 卧室的美好时时不同,时而明朗,时而沉静,时而文艺慵懒,时而清新舒爽。
 拉开白色移门,衣帽间,收纳有序,高级满满。
 主卧是留给儿子和未来儿媳妇的,现代化的设计,更适合年轻人居住。 BEDROOM 2
 客房是主家夫妇居住的,以灰色墙布为背景,橙色皮质的床靠在这纯净的空间里显得格外突出,拼接的中式韵味的挂画,也为空间添加柔情。 BEDROOM 3
 老人房,细长床头壁灯营造出抚慰人心的空间氛围;浅色背景与床品、窗帘相呼应,搭配装饰画和吊灯,现代与中式的碰撞,时尚的花火肆意迸发。STUDY
 书房仅加入书桌椅及边柜,便营造出一个安逸稳重的工作区,依旧是材质与色彩的转换,用简单的搭配达到空间主人的理想生活。 TOILET 一寸光阴一寸金,寸金难买早起心。双台盆的设计,避免家人晨间梳洗争抢和等待,同时的柜体满足了强大的收纳需求。
每个空间,于细节之处展现美感设计。
|