夜间模式
  • 147864阅读
  • 90回复

七里香都的房子开始施工了,装修日记随笔记载! [复制链接]

上一主题 下一主题
离线请等着我
级别: 昆山新人
发帖
137
昆币
201 枚
只看楼主 使用道具 电梯直达
楼主  发表于: 2022-05-31 , 来自:江苏省0==
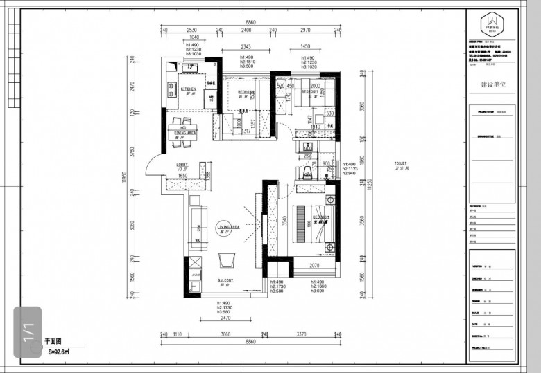
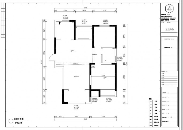
既然决定写装修日记,我今天已经让设计师截图家里的原始,平面和效果图了,这两天我空了就发出来让邻居们参考看看。

长期疫情让我想装修的心情,稍有躁动,还好这次选择的装修团队(印象水仙)值得信赖,期待合作愉快。

这是前几天的水电交底现场,前期的准备工作也是要看重一些的,小服务可以看出整体服务的品质。



开槽施工中,施工效率可以的。加油吧。


本帖评分记录
小熊系统门窗 昆币 +1 -来自昆山论坛APP 2022-12-30
印象水仙设计 昆币 +1 -来自昆山论坛APP 2022-12-29
请等着我 昆币 +1 -来自昆山论坛APP 2022-09-14
曹中瑞 昆币 +1 -来自昆山论坛APP 2022-07-31
蛮好德装饰 昆币 +1 -来自昆山论坛APP 2022-06-09
荣盛门窗 昆币 +1 -来自昆山论坛APP 2022-06-01
装修版客服 昆币 +10 鼓励分享 2022-06-01
昆山伟宏门窗 昆币 +1 -来自昆山论坛APP 2022-06-01
8条评分昆币+17
爆料有奖!关注昆山论坛抖音号,抖音搜索“昆山论坛”,或搜索抖音号:ksbbs
 
离线请等着我
级别: 昆山新人
发帖
137
昆币
201 枚
沙发  发表于: 2022-05-31 , 来自:江苏省0==
设计师快速发来家里的改造图,我比较满意的结果,大家一起可以看看。


爆料有奖!关注昆山论坛抖音号,抖音搜索“昆山论坛”,或搜索抖音号:ksbbs
 
离线请等着我
级别: 昆山新人
发帖
137
昆币
201 枚
板凳  发表于: 2022-05-31 , 来自:江苏省0==
这是效果图部分,看印象水仙装修的很多客户家完工实景都比效果好看多了,这也是我选择他们公司的原因之一。看好。







楼中楼
  • 2022-06-10 14:34 药石之言: 蓝色部分看着有点奇怪
本帖评分记录
药石之言 昆币 +1 -来自昆山论坛APP 2022-06-10
1条评分昆币+1
爆料有奖!关注昆山论坛抖音号,抖音搜索“昆山论坛”,或搜索抖音号:ksbbs
 
发帖
11506
昆币
15074 枚
地板  发表于: 2022-05-31 , 来自:江苏省0==
等你更新
爆料有奖!关注昆山论坛抖音号,抖音搜索“昆山论坛”,或搜索抖音号:ksbbs
 
美女离线昆山伟宏门窗
级别: 禁止发言

发帖
18978
昆币
32400 枚
4楼 发表于: 2022-06-01 , 来自:江苏省0==
用户被禁言,该主题自动屏蔽!
本帖评分记录
请等着我 昆币 +1 -来自昆山论坛APP 2022-06-01
1条评分昆币+1
爆料有奖!关注昆山论坛抖音号,抖音搜索“昆山论坛”,或搜索抖音号:ksbbs
 
离线请等着我
级别: 昆山新人
发帖
137
昆币
201 枚
5楼 发表于: 2022-06-01 , 来自:江苏省0==
感谢支持
爆料有奖!关注昆山论坛抖音号,抖音搜索“昆山论坛”,或搜索抖音号:ksbbs
 
离线欧模网派
级别: 昆山过客
发帖
46
昆币
52 枚
6楼 发表于: 2022-06-01 , 来自:江苏省0==
回 请等着我 的帖子
请等着我:这是效果图部分,看印象水仙装修的很多客户家完工实景都比效果好看多了,这也是我选择他们公司的原因之一。看好。
[图片]
[图片]
[图片]
....... (2022-05-31 11:28)

效果图好看的呢
本帖评分记录
药石之言 昆币 +1 -来自昆山论坛APP 2022-06-10
1条评分昆币+1
爆料有奖!关注昆山论坛抖音号,抖音搜索“昆山论坛”,或搜索抖音号:ksbbs
 
离线欧模网派
级别: 昆山过客
发帖
46
昆币
52 枚
7楼 发表于: 2022-06-01 , 来自:江苏省0==
帖子不错,标记一下,等更新
爆料有奖!关注昆山论坛抖音号,抖音搜索“昆山论坛”,或搜索抖音号:ksbbs
 
美女离线装修版客服
发帖
10174
昆币
22137 枚
8楼 发表于: 2022-06-01 , 来自:江苏省0==
恭喜楼主,开工大吉,后期也要常来哦
爆料有奖!关注昆山论坛抖音号,抖音搜索“昆山论坛”,或搜索抖音号:ksbbs
 
美女离线荣盛门窗
级别: 禁止发言

发帖
7737
昆币
8552 枚
9楼 发表于: 2022-06-01 , 来自:江苏省0==
用户被禁言,该主题自动屏蔽!
爆料有奖!关注昆山论坛抖音号,抖音搜索“昆山论坛”,或搜索抖音号:ksbbs
 
快速回复
限76 字节
如果您在写长篇帖子又不马上发表,建议存为草稿
 
上一个 下一个