夜间模式
  • 408351阅读
  • 181回复

老破小装修 我们从赵选择装修公司开始 [复制链接]

上一主题 下一主题
美女离线屁屁姐
级别: 昆山新人
发帖
254
昆币
450 枚
50楼 发表于: 2022-10-27 , 来自:江苏省0==
第二天上图 我顺便问了门的大小 方便我这周去看看门.窗也要定下来 有点想安装系统窗,普通的窗需要安装防盗窗会影响采光,不安装家里有小朋友不安全,需要斟酌一下



爆料有奖!关注昆山论坛抖音号,抖音搜索“昆山论坛”,或搜索抖音号:ksbbs
 
美女离线屁屁姐
级别: 昆山新人
发帖
254
昆币
450 枚
51楼 发表于: 2022-11-02 , 来自:江苏省0==
昨天收到最新图片 把建筑垃圾都清理掉了 看起来挺大的 小伙伴说这个服务可以的 666 浅浅夸一下 免得骄傲 给大家发点现场图片





爆料有奖!关注昆山论坛抖音号,抖音搜索“昆山论坛”,或搜索抖音号:ksbbs
 
美女离线屁屁姐
级别: 昆山新人
发帖
254
昆币
450 枚
52楼 发表于: 2022-11-02 , 来自:江苏省0==
十月最后一天双十一已经开始了我先把地漏 给安排好了都是问过设计师的买的潜水艇 京东买的感觉挺便宜的,,大家可以参考一下价格 总价是353 四个 管径40
爆料有奖!关注昆山论坛抖音号,抖音搜索“昆山论坛”,或搜索抖音号:ksbbs
 
美女离线屁屁姐
级别: 昆山新人
发帖
254
昆币
450 枚
53楼 发表于: 2022-11-02 , 来自:江苏省0==
爆料有奖!关注昆山论坛抖音号,抖音搜索“昆山论坛”,或搜索抖音号:ksbbs
 
美女离线屁屁姐
级别: 昆山新人
发帖
254
昆币
450 枚
54楼 发表于: 2022-11-02 , 来自:江苏省0==
这边和大家说一下 我家大概的面积100.68 全包的话13.6w 一个很划算的价格我是这么认为的   后面给大家放设计图 我对于设计的话主要是简洁为主,耐用就好了,没有特别繁琐的设计,待会给大家放一下我家的原来的布局和最后的设计,效果图方便的话我也给截图放在后面。
爆料有奖!关注昆山论坛抖音号,抖音搜索“昆山论坛”,或搜索抖音号:ksbbs
 
美女离线屁屁姐
级别: 昆山新人
发帖
254
昆币
450 枚
55楼 发表于: 2022-11-02 , 来自:江苏省0==
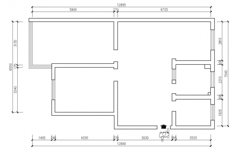
第一张图片是原来的布局图 第二张图片是目前最心水的方案,也是按照这个方案执行的

爆料有奖!关注昆山论坛抖音号,抖音搜索“昆山论坛”,或搜索抖音号:ksbbs
 
美女离线屁屁姐
级别: 昆山新人
发帖
254
昆币
450 枚
56楼 发表于: 2022-11-02 , 来自:江苏省0==
上周疫情不敢乱跑 这周我要去看看窗户和入户门,经过好几个朋友的介绍,确定了几家到时候一起去看看先。
爆料有奖!关注昆山论坛抖音号,抖音搜索“昆山论坛”,或搜索抖音号:ksbbs
 
级别: 昆山新人
发帖
106
昆币
135 枚
57楼 发表于: 2022-11-02 , 来自:江苏省0==
哇,这个装修公司弄得好干净,感觉挺好



[ 此帖被任掌柜carry在2022-11-02 16:33重新编辑 ]
爆料有奖!关注昆山论坛抖音号,抖音搜索“昆山论坛”,或搜索抖音号:ksbbs
 
美女离线屁屁姐
级别: 昆山新人
发帖
254
昆币
450 枚
58楼 发表于: 2022-11-08 , 来自:江苏省0==
上周三的 这样了 现在在纠结窗户和防盗窗 上次去了好几家店铺问了系统和普通的区别其实就是隔音的 问题 我以为系统窗不需要防盗窗的 其实不是的 家里有小朋友还是需要的防盗窗 14.5除了个别报价特别离谱之外价格在1.4w左右




楼中楼
  • 2022-11-08 17:20 小熊系统门窗: 一般开窗外面都具备带锁的金刚网,防盗窗可以不用装了
爆料有奖!关注昆山论坛抖音号,抖音搜索“昆山论坛”,或搜索抖音号:ksbbs
 
美女离线屁屁姐
级别: 昆山新人
发帖
254
昆币
450 枚
59楼 发表于: 2022-11-08 , 来自:江苏省0==
我还买了入户门甲级c锁 密码锁带指纹 还有猫眼视屏 保证安全 价格也很划算 3580 包灌浆 是群友介绍的杠杠的 在白马径那边买的
楼中楼
  • 2023-08-09 15:49 姑苏城外人: 楼主买的什么型号的啊?
爆料有奖!关注昆山论坛抖音号,抖音搜索“昆山论坛”,或搜索抖音号:ksbbs
 
快速回复
限76 字节
批量上传需要先选择文件,再选择上传
 
上一个 下一个