夜间模式
  • 9962阅读
  • 1回复

[装修]160㎡现代私宅,实景完工现场,附:现场视频 [复制链接]

上一主题 下一主题
帅哥离线印象水仙设计
级别: 家装商家
发帖
11306
昆币
19355 枚
只看楼主 使用道具 电梯直达
楼主  发表于: 2022-11-19 , 来自:江苏省0==
现场实景视频




九月的城市秋色渐浓
对家的渴望也沉醉于慵懒的斑斓之中
秋天很短,秋色却可以很长
在家感受秋的温柔气息
挽留一片撩人秋色




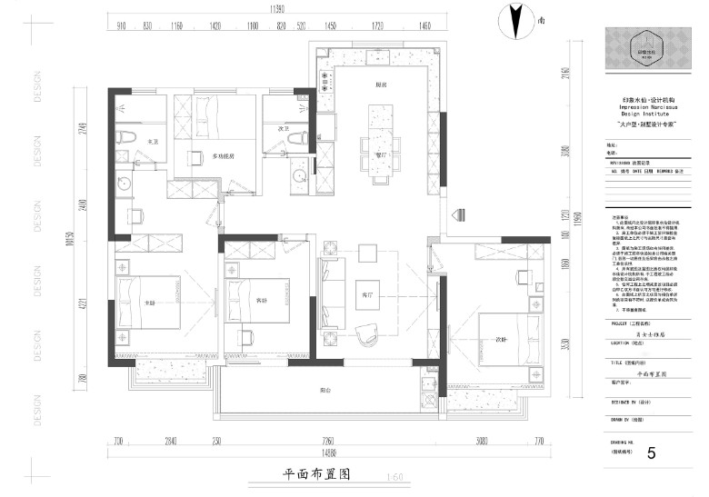
160m2现代简约
四室两厅两卫一厨
设计单位:印象水仙
施工单位:印象水仙





理想的家居生活,家庭成员间既要有围拢交流的地方,又需要各自独立的个人空间,二者的有机结合构成了空间的自在性。


本案是一套四口之家的改善型新居,设计师在宽阔的大宅格局中探索空间的无限可能,丈量舒适生活的尺度,将亲密的情感关系、高品质的生活追求、齐全的空间功能等因素纳入精细的设计中,于闹市中还原一处静谧清幽而又精致优雅的宜居之所。


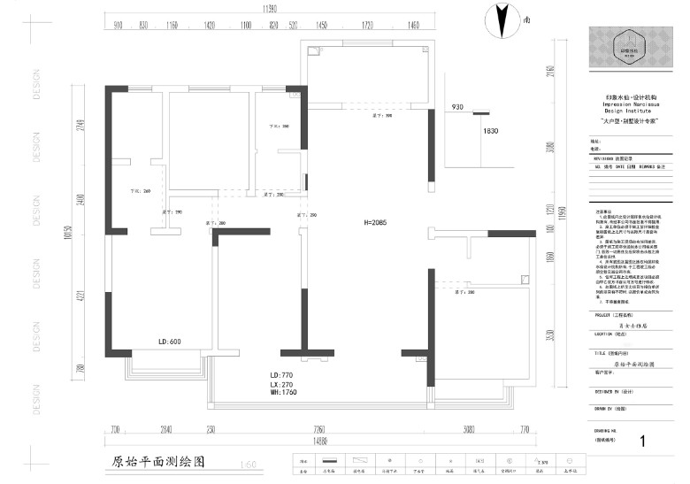
原始结构图




平面布置图







LIVING ROOM
客厅









舒适的室内空间,木色,白色和咖色的搭配,呈现出一个惬意休闲的轻松氛围,给人以简约温馨的感觉,让生活显得更加的品质高雅。








上面两张图可以看到电视背景墙隐形门的设计,大面积木色木饰面温暖质朴,让人沉浸在舒适自然、安详宁静的空间里。









沙发背景墙一侧选用深色木纹格栅搭配线性灯的设计,空间层次分明,个性彰显质感。






DINING ROOM & KITCHEN
餐厨






餐厅和厨房延续了客厅的木色,整体光线通透明亮,线条或利落或和缓的桌椅组合,在硬朗中显现着柔和。






一侧嵌入透明玻璃储物柜美观又实用,微不足道的细节总是最能打动人心。








选用马醉木绿植做点缀,寓意极美。






CORRIDOR
过道






过道隐形门的设置,让空间的观感始终保持整齐统一。





MASTER BEDROOM
主卧





推开隐形门,看到的是精致的梳妆台及收纳柜,移步至主卧及内卫,顺畅的动线衔接各功能区,大面积纯色,降低了空间的拥挤感。





主卧床头背景选用浅色硬包散发简约美,两幅大小不一的装饰画彰显着居住者的生活志趣,床饰以及窗帘、飘窗的布局,于静默安然的气氛中注入现代时髦感;叠加射灯、壁灯,层次感瞬间迭起,明暗光影交错,映衬高级感轮廓。






在这处私密不被打扰的空间里找寻舒适的生活节奏,不紧不慢,自在从容。


梳妆台@内卫






SECONDARY BEDROOM
次卧






次卧选用灰度为主的配色,让人拥有安心温暖的感觉;简的宁静,自然的意念,汇聚一室,夜色未央时,灯光弥漫,沉甸甸的幸福感,酝酿于此。





一侧衣柜及书柜的定制组合,这个空间的整体布局,完美满足了屋主日常阅读、休憩、收纳的生活需求。





CHILDREN'S ROOM
儿童房





隔绝外界复杂的情绪,女儿房选用粉色系家居,仅保留一份孩子的天真;放眼望去是无比的整洁与纯净,蝴蝶挂画的点缀,让童趣留入孩童的梦里。







BALCONY
阳台





双阳台一侧打造成一块隐藏式功能区,嵌入式洗衣机、烘干机及智能晾衣架,将琐碎杂乱的痕迹隐匿;黑白灰极简风的设计,阳光透过白纱透进屋子,还原业主理想的年轻化生活方式。

TOILET
卫生间






卫生间干区,将冷静克制的“高级灰”与温润的木质元素进行调和,让整个空间变得丰富又和谐。柜体间隐藏式灯带为空间营造立面的灵动感,每当仪式感灯光亮起,缓缓照亮品质生活的细节。

本帖评分记录
乐来 昆币 +1 -来自昆山论坛APP 2022-11-19
1条评分昆币+1
爆料有奖!关注昆山论坛抖音号,抖音搜索“昆山论坛”,或搜索抖音号:ksbbs
 
帅哥离线鑫哥
发帖
4624
昆币
12848 枚
沙发  发表于: 2022-11-19 , 来自:江苏省0==
多少钱一平米
爆料有奖!关注昆山论坛抖音号,抖音搜索“昆山论坛”,或搜索抖音号:ksbbs
 
快速回复
限76 字节
如果您提交过一次失败了,可以用”恢复数据”来恢复帖子内容
 
上一个 下一个