夜间模式
  • 126944阅读
  • 42回复

130平的房子,套内125左右,正式开始装修,随笔! [复制链接]

上一主题 下一主题
级别: 昆山新人
发帖
136
昆币
195 枚
只看楼主 使用道具 电梯直达
楼主  发表于: 2022-12-12 , 来自:江苏省0==
一起庆祝开工大吉
找的论坛很火的印象水仙设计,关注了他们家一年左右时间,身边也有朋友介绍,从设计作品和工地都有去参观过,最终选择了合作,期待后期的完工效果能跟其他家一样棒棒哒,先奉上效果图!

清爽简约风,长久耐看,家人以及本人的审美。









本帖评分记录
海阔天空i 昆币 +1 -来自昆山论坛APP 2023-03-31
噜噜噜噜璐璐 昆币 +1 -来自昆山论坛APP 2023-02-20
伤痛有痕 昆币 +1 -来自昆山论坛APP 2023-02-20
锦度装饰 昆币 +1 -来自昆山论坛APP 2023-02-02
昆山伟宏门窗 昆币 +1 -来自昆山论坛APP 2023-01-06
我独自 昆币 +1 -来自昆山论坛APP 2022-12-31
用翅膀画出 昆币 +1 -来自昆山论坛APP 2022-12-31
1891498729 昆币 +1 -来自昆山论坛APP 2022-12-30
印象水仙设计 昆币 +1 -来自昆山论坛APP 2022-12-25
一去不回头 昆币 +1 -来自昆山论坛APP 2022-12-15
10条评分昆币+10
爆料有奖!关注昆山论坛抖音号,抖音搜索“昆山论坛”,或搜索抖音号:ksbbs
 
帅哥离线伯吉
级别: 昆山新人
发帖
118
昆币
170 枚
沙发  发表于: 2022-12-12 , 来自:江苏省0==
恭喜恭喜
预祝心想事成
本帖评分记录
锦度装饰 昆币 +1 -来自昆山论坛APP 2023-02-02
1条评分昆币+1
爆料有奖!关注昆山论坛抖音号,抖音搜索“昆山论坛”,或搜索抖音号:ksbbs
 
在线朗通装饰
级别: 家装商家

发帖
16952
昆币
14166 枚
板凳  发表于: 2022-12-12 , 来自:江苏省0==
恭喜恭喜

也邀请大家多看装修日记,多学装修心得!

爆料有奖!关注昆山论坛抖音号,抖音搜索“昆山论坛”,或搜索抖音号:ksbbs
 
离线岩鹤
级别: 昆山新人
发帖
189
昆币
284 枚
地板  发表于: 2022-12-13 , 来自:江苏省0==
恭喜啊
印象水仙还不错
我艺术中心装修也找的他们设计施工的
本帖评分记录
锦度装饰 昆币 +1 -来自昆山论坛APP 2023-02-02
印象水仙设计 昆币 +1 -来自昆山论坛APP 2022-12-14
2条评分昆币+2
爆料有奖!关注昆山论坛抖音号,抖音搜索“昆山论坛”,或搜索抖音号:ksbbs
 
帅哥离线印象水仙设计
级别: 家装商家
发帖
11306
昆币
19355 枚
4楼 发表于: 2022-12-14 , 来自:江苏省0==
路过业主家工地
硬装结束
现场随拍
大家参考看看
楼主加油分享哈
感谢





楼中楼
  • 2022-12-15 10:24 激情上演: 好看
本帖评分记录
一去不回头 昆币 +1 -来自昆山论坛APP 2022-12-15
激情上演 昆币 +1 -来自昆山论坛APP 2022-12-15
2条评分昆币+2
爆料有奖!关注昆山论坛抖音号,抖音搜索“昆山论坛”,或搜索抖音号:ksbbs
 
离线激情上演
级别: 昆山新人
发帖
202
昆币
413 枚
5楼 发表于: 2022-12-15 , 来自:江苏省0==
效果看着好看的
加油
本帖评分记录
锦度装饰 昆币 +1 -来自昆山论坛APP 2023-02-02
1条评分昆币+1
爆料有奖!关注昆山论坛抖音号,抖音搜索“昆山论坛”,或搜索抖音号:ksbbs
 
级别: 昆山新人
发帖
136
昆币
195 枚
6楼 发表于: 2022-12-15 , 来自:江苏省0==
拆!
本帖评分记录
锦度装饰 昆币 +1 -来自昆山论坛APP 2023-02-02
1条评分昆币+1
爆料有奖!关注昆山论坛抖音号,抖音搜索“昆山论坛”,或搜索抖音号:ksbbs
 
级别: 昆山新人
发帖
155
昆币
215 枚
7楼 发表于: 2022-12-22 , 来自:江苏省0==
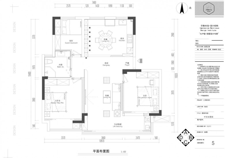
户型图有空分享看看
楼中楼
  • 2022-12-23 11:42 一去不回头: 看下面
本帖评分记录
一去不回头 昆币 +1 -来自昆山论坛APP 2022-12-23
1条评分昆币+1
爆料有奖!关注昆山论坛抖音号,抖音搜索“昆山论坛”,或搜索抖音号:ksbbs
 
级别: 昆山新人
发帖
136
昆币
195 枚
8楼 发表于: 2022-12-23 , 来自:江苏省0==
户型设计部分
非常喜欢餐厨一起的设计
区域规划的很nice
本帖评分记录
锦度装饰 昆币 +1 -来自昆山论坛APP 2023-02-02
1条评分昆币+1
爆料有奖!关注昆山论坛抖音号,抖音搜索“昆山论坛”,或搜索抖音号:ksbbs
 
离线年少曾经
级别: 昆山新人
发帖
304
昆币
528 枚
9楼 发表于: 2022-12-23 , 来自:江苏省0==
多少钱?
楼中楼
  • 2022-12-30 12:45 一去不回头: 总预算35w内吧
爆料有奖!关注昆山论坛抖音号,抖音搜索“昆山论坛”,或搜索抖音号:ksbbs
 
快速回复
限76 字节
如果您在写长篇帖子又不马上发表,建议存为草稿
 
上一个 下一个