夜间模式
  • 161645阅读
  • 7回复

旧貌换新颜-不想被定义风格的家 [复制链接]

上一主题 下一主题
离线茉莉moli
发帖
577
昆币
887 枚
只看楼主 使用道具 电梯直达
楼主  发表于: 2023-02-08 , 来自:江苏省0==
家装日记
小区: 老城区
套内面积: 95 (平米)
预算: 25W 万
开工日期: 2022/6/26
装修风格: 其他
装修方式: 半包
装修公司:
       这是一篇迟到的装修日记,去年年中开工时,就想根据装修进度同步写写装修日记,因为自己的拖延,懒惰,所以来的有点晚,现在记录一是想借助论坛这个平台分享一下装修心得,给有同样需求的小伙伴一些参考。二也是非常爱好装修这个事情的本身,如果时光倒流,我真的很想改行。
       第一步肯定是选择装修公司啦!

      
[ 此帖被茉莉moli在2023-02-08 15:01重新编辑 ]
本帖评分记录
海阔天空i 昆币 +1 -来自昆山论坛APP 2023-04-13
昆山伟宏门窗 昆币 +1 -来自昆山论坛APP 2023-02-15
2条评分昆币+2
爆料有奖!关注昆山论坛抖音号,抖音搜索“昆山论坛”,或搜索抖音号:ksbbs
 
离线茉莉moli
发帖
577
昆币
887 枚
沙发  发表于: 2023-02-08 , 来自:江苏省0==
一开始就确定的是半包,因为不着急入住以及户型比较奇葩,所以特别想找个设计大神能够化腐朽为神奇。在选装修公司上也耗费了近两个月的时间,这期间不停的看方案,看方案,看方案 但是都没有很满意的!
在此感谢所以给过我建议的设计师们,虽然最后没有选择你们,但是真心的感谢你们的付出,户型不好又想找独立设计工作室,因为银子的问题还是放弃了,也是在不停看方案的路上,我慢慢的有了自己的想法,所以最终我找了个认为配合度会比较好的公司帮我施工。所以也没有出效果图,效果图都在我的脑子里 ,每天都在变。
爆料有奖!关注昆山论坛抖音号,抖音搜索“昆山论坛”,或搜索抖音号:ksbbs
 
离线茉莉moli
发帖
577
昆币
887 枚
板凳  发表于: 2023-02-08 , 来自:江苏省0==
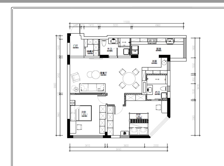
没有效果图,不能让大家先睹为快,就先看看奇葩的户型图吧
爆料有奖!关注昆山论坛抖音号,抖音搜索“昆山论坛”,或搜索抖音号:ksbbs
 
离线茉莉moli
发帖
577
昆币
887 枚
地板  发表于: 2023-02-08 , 来自:江苏省0==
半包对于我这种早上喜欢法式奶油风,下午又钟情于南洋复古风的我太香了,因为在下一个工序施工前,我可以一天改变三回
爆料有奖!关注昆山论坛抖音号,抖音搜索“昆山论坛”,或搜索抖音号:ksbbs
 
离线茉莉moli
发帖
577
昆币
887 枚
4楼 发表于: 2023-02-08 , 来自:江苏省0==
最后确定的平面布局
楼中楼
  • 2023-02-16 09:45 甘困爱海: 这平面有些潦草呀
爆料有奖!关注昆山论坛抖音号,抖音搜索“昆山论坛”,或搜索抖音号:ksbbs
 
离线朗通装饰
级别: 家装商家

发帖
16956
昆币
14173 枚
5楼 发表于: 2023-02-08 , 来自:江苏省0==

恭喜恭喜
爆料有奖!关注昆山论坛抖音号,抖音搜索“昆山论坛”,或搜索抖音号:ksbbs
 
美女离线昆山伟宏门窗
级别: 禁止发言

发帖
18978
昆币
32400 枚
6楼 发表于: 2023-02-15 , 来自:江苏省0==
用户被禁言,该主题自动屏蔽!
爆料有奖!关注昆山论坛抖音号,抖音搜索“昆山论坛”,或搜索抖音号:ksbbs
 
快速回复
限76 字节
批量上传需要先选择文件,再选择上传
 
上一个 下一个