夜间模式
  • 62768阅读
  • 39回复

[城建规划]昆山开发区规建局关于庆丰路北侧、青阳港东侧(昆塔苑一期)方案的公示 [复制链接]

上一主题 下一主题
帅哥在线lamarodom
级别: 昆山名人

发帖
178689
昆币
433087 枚
只看楼主 使用道具 电梯直达
楼主  发表于: 2024-02-07 , 来自:江苏省0==
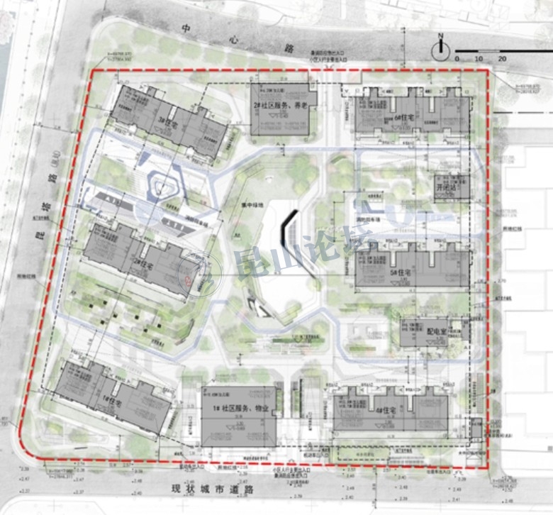
昆山开发区规划建设局关于庆丰路北侧、青阳港东侧商住地块项目设计方案的公示
本帖评分记录
我脾气超好 昆币 +1 -来自昆山论坛APP 2024-04-11
nsdick19 昆币 +1 -来自昆山论坛APP 2024-02-20
心声共鸣 昆币 +1 -来自昆山论坛APP 2024-02-13
sxc123 昆币 +1 -来自昆山论坛APP 2024-02-11
岸芷汀兰hui 昆币 +1 -来自昆山论坛APP 2024-02-11
昼颜 昆币 +1 -来自昆山论坛APP 2024-02-10
仈蕶後 昆币 +1 -来自昆山论坛APP 2024-02-10
mpmstar 昆币 +1 -来自昆山论坛APP 2024-02-08
一凡406 昆币 +1 -来自昆山论坛APP 2024-02-08
风之子2046 昆币 +1 -来自昆山论坛APP 2024-02-08
12
16条评分昆币+16
爆料有奖!关注昆山论坛抖音号,抖音搜索“昆山论坛”,或搜索抖音号:ksbbs
 
离线wsnxl
发帖
3016
昆币
4275 枚
沙发  发表于: 2024-02-07 , 来自:江苏省0==
等待拿拆迁房
本帖评分记录
咔咔啦来的 昆币 +1 -来自昆山论坛APP 2024-02-19
1条评分昆币+1
爆料有奖!关注昆山论坛抖音号,抖音搜索“昆山论坛”,或搜索抖音号:ksbbs
 
帅哥在线lamarodom
级别: 昆山名人

发帖
178689
昆币
433087 枚
板凳  发表于: 2024-02-07 , 来自:江苏省0==
回 wsnxl 的帖子
wsnxl:等待拿拆迁房[表情] (2024-02-07 15:51)

恭喜恭喜
爆料有奖!关注昆山论坛抖音号,抖音搜索“昆山论坛”,或搜索抖音号:ksbbs
 
离线wsnxl
发帖
3016
昆币
4275 枚
地板  发表于: 2024-02-07 , 来自:江苏省0==
这六栋好像是第一期,后面化肥新村、建材新村全部拆迁,所以估计这个体量还是比较大的。
本帖评分记录
咔咔啦来的 昆币 +1 -来自昆山论坛APP 2024-02-19
1条评分昆币+1
爆料有奖!关注昆山论坛抖音号,抖音搜索“昆山论坛”,或搜索抖音号:ksbbs
 
发帖
3298
昆币
6947 枚
4楼 发表于: 2024-02-07 , 来自:浙江0==
地上容积率更降为1.8了,不比容积率2.92的新城云天香
楼中楼
  • 2024-02-08 14:05 天涯海角ykj: 1.8的话,就是以洋房为主了
  • 2024-02-08 15:04 用户名违规16: 没有,从公示图看,大概18层和12层各三幢~
  • 2024-02-11 16:33 暴富暴瘦: 地很小,小高层为主
爆料有奖!关注昆山论坛抖音号,抖音搜索“昆山论坛”,或搜索抖音号:ksbbs
 
在线lijuan-xu
发帖
1335
昆币
1899 枚
5楼 发表于: 2024-02-07 , 来自:江苏省0==
回 用户名违规16 的帖子
用户名违规16:地上容积率更降为1.8了,不比容积率2.92的新城云天香 (2024-02-07 16:09)

还得看房型。反正新城云天小区布局,房型都不太香,和新城天地差远了。
楼中楼
  • 2024-02-08 11:39 用户名违规16: 国字头建筑设计院的设计,会比开发区建筑设计院的设计还差?
爆料有奖!关注昆山论坛抖音号,抖音搜索“昆山论坛”,或搜索抖音号:ksbbs
 
帅哥离线wey1986
发帖
3274
昆币
4734 枚
6楼 发表于: 2024-02-07 , 来自:江苏省0==
赶紧吧,东岸几个小区都等着呢
爆料有奖!关注昆山论坛抖音号,抖音搜索“昆山论坛”,或搜索抖音号:ksbbs
 
帅哥离线123abc交通
级别: 昆山名人
发帖
69202
昆币
106649 枚
7楼 发表于: 2024-02-07 , 来自:江苏省0==
这个都几次了吧
爆料有奖!关注昆山论坛抖音号,抖音搜索“昆山论坛”,或搜索抖音号:ksbbs
 
帅哥在线lamarodom
级别: 昆山名人

发帖
178689
昆币
433087 枚
8楼 发表于: 2024-02-07 , 来自:江苏省0==
回 123abc交通 的帖子
123abc交通:这个都几次了吧 (2024-02-07 18:54)

第一次公示啊
爆料有奖!关注昆山论坛抖音号,抖音搜索“昆山论坛”,或搜索抖音号:ksbbs
 
帅哥离线昼颜
级别: 昆山新人
发帖
186
昆币
577 枚
9楼 发表于: 2024-02-07 , 来自:江苏省0==
终于等到你
爆料有奖!关注昆山论坛抖音号,抖音搜索“昆山论坛”,或搜索抖音号:ksbbs
 
快速回复
限76 字节
批量上传需要先选择文件,再选择上传
 
上一个 下一个