夜间模式
  • 122587阅读
  • 8回复

[装修]『新作首发』巴城古镇老房改造唤醒生活 [复制链接]

上一主题 下一主题
帅哥离线蛮好德装饰
级别: 禁止发声

发帖
14928
昆币
5104 枚
只看楼主 使用道具 电梯直达
楼主  发表于: 2024-09-16 , 来自:江苏省0==
「写在之前」  
繁华外,市井处,古镇里,醉是人间。


巴城老街始建于清代光绪年间,东西长二百米,街道狭窄,最窄处仅容3人并肩同行。
为了充分利用空间,两边民居、商店屋檐都向中间挑出,使老街显得更加狭窄,有“一线天”之称。
老街延续着清代和民国时期的建筑风格,商铺傍水而立,面街枕河,粉墙黛瓦。石桥横跨、河埠错落有致一派秀丽的江南水乡风情。



/刘澐


































本案位于巴城古街的老房子,翻新装修这套房,保留外立面,把里面重新装修,老房改造不仅仅是翻新那么简单,它存在太多的人和事,一种童年,一种回忆故事,更是一种情怀,熟悉的地方,虽然回不到过去,但他会以崭新的面貌出现再次出现,再一次出现我们的生活。住久了的老房子总会有墙面地板老化,风格老旧,采光效果差、空间拥挤等问题。旧房改造就是让房子焕发新颜的神奇魔法。
  
设计亮点:
1.黑白配色,经典质感,营造出一种简洁而又不失温馨的氛围;
2.楼梯挪动是点睛之笔,原楼梯在现在沙发位置上去,客餐厅整体性不好,现改到后边进,客餐厅整体性统一。
在保证收纳面积的同时,视觉上也能营造出与众不同的高级质感。打造出灵动的入户空间,穿插有度,开门见景。

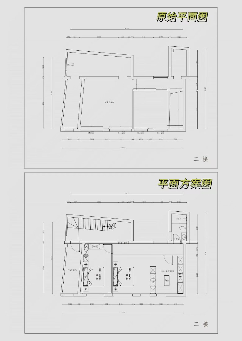
平面布局图 LAYOUT PLAN




▌项目概况:项目类型:住宅设计地址:巴城古镇项目面积:170㎡复式设计单位:昆山蛮好德装饰
  

01
客厅
A LIVING ROOM

















02
厨房&餐厅
Kitchen&Restaurant






烟火气,人间最绵长的滋味。充满烟火气的生活,是最平凡的生活,也是最有诗意的生活……
认真对待每一餐烟火,用心感悟每一个朝夕。





03
楼梯间
Staircase









平面布局图
LAYOUT PLAN





04
主卧
MASTER BEDROOM









05
次 卧
Bedroom







06
卫生间
TOILET










[ 此帖被蛮好德装饰在2024-09-16 14:45重新编辑 ]
爆料有奖!关注昆山论坛抖音号,抖音搜索“昆山论坛”,或搜索抖音号:ksbbs
 
美女在线毒幕舞
发帖
655
昆币
923 枚
沙发  发表于: 2024-09-16 , 来自:江苏省0==
这是效果图吧?想看看实景落地图
爆料有奖!关注昆山论坛抖音号,抖音搜索“昆山论坛”,或搜索抖音号:ksbbs
 
帅哥离线蛮好德装饰
级别: 禁止发声

发帖
14928
昆币
5104 枚
板凳  发表于: 2024-09-17 , 来自:江苏省0==
回 毒幕舞 的帖子
毒幕舞:这是效果图吧?想看看实景落地图 (2024-09-16 17:20)

好的,后期陆续更新这家~~~~请继续关注我们哈
爆料有奖!关注昆山论坛抖音号,抖音搜索“昆山论坛”,或搜索抖音号:ksbbs
 
帅哥离线蛮好德装饰
级别: 禁止发声

发帖
14928
昆币
5104 枚
地板  发表于: 2024-09-17 , 来自:江苏省0==
『拆除之后』








爆料有奖!关注昆山论坛抖音号,抖音搜索“昆山论坛”,或搜索抖音号:ksbbs
 
帅哥离线蛮好德装饰
级别: 禁止发声

发帖
14928
昆币
5104 枚
4楼 发表于: 2024-09-17 , 来自:江苏省0==
『搭建钢结构楼板』这里注意一个细节,考虑层高的问题,图二红色标记的点点,这个地方走水管,要提前开洞的哈。

爆料有奖!关注昆山论坛抖音号,抖音搜索“昆山论坛”,或搜索抖音号:ksbbs
 
帅哥离线蛮好德装饰
级别: 禁止发声

发帖
14928
昆币
5104 枚
5楼 发表于: 2024-09-17 , 来自:江苏省0==
『瓦木同步进行』






爆料有奖!关注昆山论坛抖音号,抖音搜索“昆山论坛”,或搜索抖音号:ksbbs
 
帅哥离线蛮好德装饰
级别: 禁止发声

发帖
14928
昆币
5104 枚
6楼 发表于: 2024-10-10 , 来自:江苏省0==
古镇施工
        裸露的青砖—写满岁月悠长





爆料有奖!关注昆山论坛抖音号,抖音搜索“昆山论坛”,或搜索抖音号:ksbbs
 
帅哥离线蛮好德装饰
级别: 禁止发声

发帖
14928
昆币
5104 枚
7楼 发表于: 2024-10-10 , 来自:江苏省0==
墙体修补粉刷,地面墙面丙纶布施工。




爆料有奖!关注昆山论坛抖音号,抖音搜索“昆山论坛”,或搜索抖音号:ksbbs
 
帅哥离线蛮好德装饰
级别: 禁止发声

发帖
14928
昆币
5104 枚
8楼 发表于: 2024-11-08 , 来自:江苏省0==
瓦工施工结束,工程总监现场验收。目前美缝阶段








爆料有奖!关注昆山论坛抖音号,抖音搜索“昆山论坛”,或搜索抖音号:ksbbs
 
快速回复
限76 字节
批量上传需要先选择文件,再选择上传
 
上一个 下一个