夜间模式
  • 55460阅读
  • 11回复

周市合生颐庭房子值得入手吗? [复制链接]

上一主题 下一主题
级别: 昆山过客
发帖
18
昆币
34 枚
只看楼主 使用道具 电梯直达
楼主  发表于: 2024-10-15 , 来自:江苏省0==
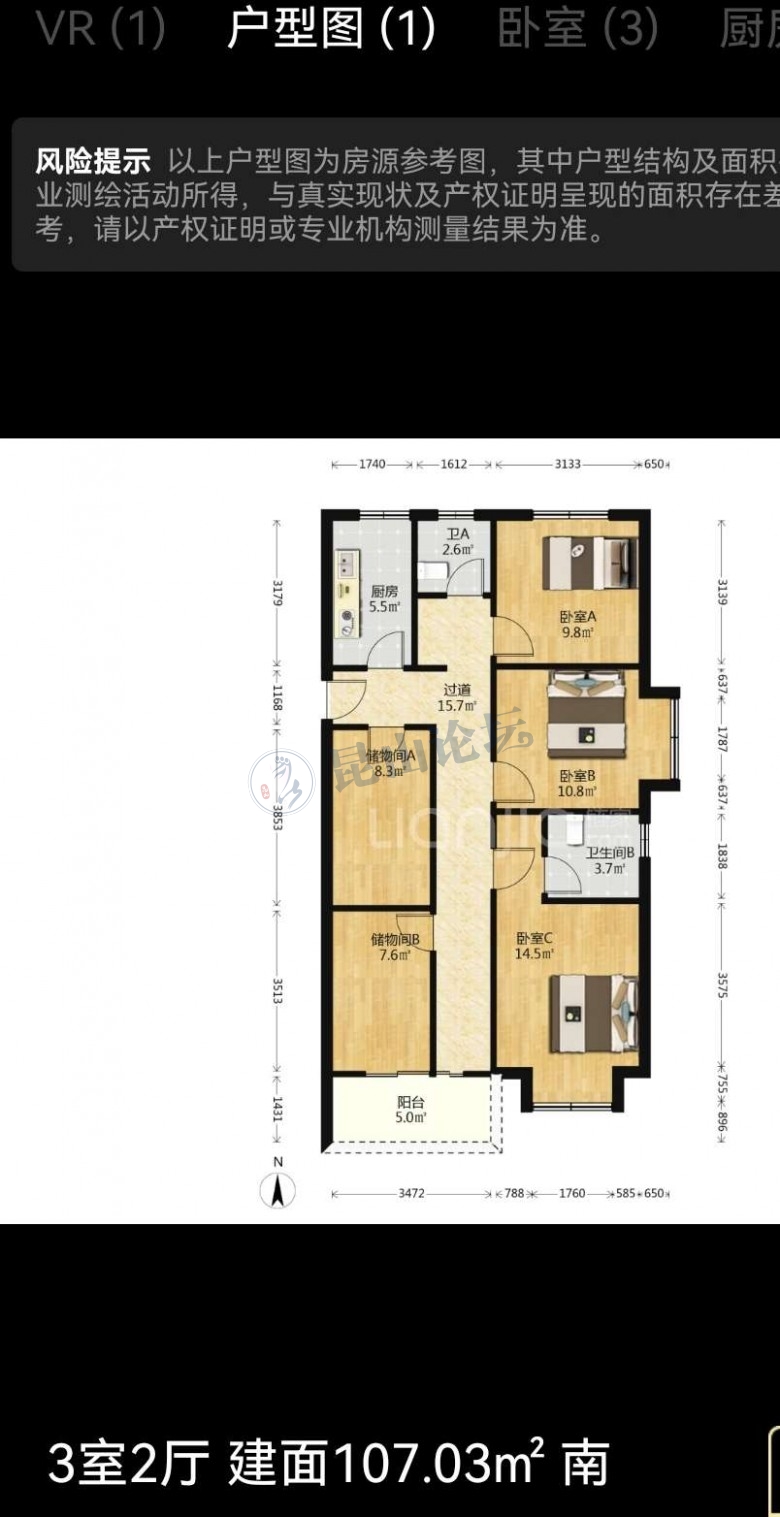
合生颐庭四期五期这两种相似户型选哪个,四期107平满两年总高18层,五期117平不满两年有大税总高30层 KV]8 o'  
KQ2jeJ/pj  
本帖评分记录
xzks 昆币 +1 -来自昆山论坛APP 2024-10-15
1条评分昆币+1
爆料有奖!关注昆山论坛抖音号,抖音搜索“昆山论坛”,或搜索抖音号:ksbbs
 
离线丁醚
发帖
1571
昆币
2630 枚
沙发  发表于: 2024-10-15 , 来自:江苏省0==
户型偏紧凑,面宽太窄。尽量买东西向长度长于南北方向长度的。反正现在买方市场,多挑多看吧
楼中楼
  • 2024-10-15 09:00 冰冰凉凉2zb: 周市这边有推荐的户型较好的小区吗?
  • 2024-10-15 17:35 丁醚: 那边不熟
  • 2024-10-21 09:11 ngguli: 翡萃那个去看看
爆料有奖!关注昆山论坛抖音号,抖音搜索“昆山论坛”,或搜索抖音号:ksbbs
 
级别: 昆山名人

发帖
39393
昆币
7986 枚
板凳  发表于: 2024-10-15 , 来自:江苏省0==
差评  走廊 好长 别买了
楼中楼
  • 2024-10-15 09:56 harry20191001: 那是客厅 改造的!! 这个是南北通透的方正户型  应该是合生不错的边户
  • 2024-10-15 12:04 青翼蝠王: 那是二房东隔的
爆料有奖!关注昆山论坛抖音号,抖音搜索“昆山论坛”,或搜索抖音号:ksbbs
 
帅哥离线牛牛123
发帖
544
昆币
908 枚
地板  发表于: 2024-10-15 , 来自:江苏省0==
这房型肯定是二房东设计的
楼中楼
  • 2024-10-15 09:57 冰冰凉凉2zb: 隔了四间的是二房东设计的
爆料有奖!关注昆山论坛抖音号,抖音搜索“昆山论坛”,或搜索抖音号:ksbbs
 
美女在线xzks
发帖
5159
昆币
7112 枚
4楼 发表于: 2024-10-15 , 来自:江苏省0==
楼间距很大,最大的优点
楼中楼
  • 2024-10-15 13:14 冰冰凉凉2zb: 是的,环境也可以,好停车
爆料有奖!关注昆山论坛抖音号,抖音搜索“昆山论坛”,或搜索抖音号:ksbbs
 
离线zhuhenry
级别: 昆山新人
发帖
492
昆币
840 枚
5楼 发表于: 2024-10-15 , 来自:上海市0==
为啥喜欢买高层?隔壁万科的电梯洋房不香吗?实在预算有限的话,多层步梯的老房子也不错啊!我是卖掉了高层置换的多层,刮风下雨太TM吓人了,没安全感
楼中楼
  • 2024-10-15 13:13 冰冰凉凉2zb: 我也知道洋房别墅香啊,房龄太老了又不喜欢,说到底,还是太穷了
本帖评分记录
吃番茄 昆币 +1 -来自昆山论坛APP 2024-10-20
1条评分昆币+1
爆料有奖!关注昆山论坛抖音号,抖音搜索“昆山论坛”,或搜索抖音号:ksbbs
 
帅哥离线linan2010
级别: 禁止发言
发帖
889
昆币
340 枚
6楼 发表于: 2024-10-15 , 来自:上海市0==
用户被禁言,该主题自动屏蔽!
爆料有奖!关注昆山论坛抖音号,抖音搜索“昆山论坛”,或搜索抖音号:ksbbs
 
离线帅哥周
发帖
1741
昆币
5153 枚
7楼 发表于: 2024-10-15 , 来自:江苏省0==
有选择的情况下不要去碰高层,
楼中楼
  • 2024-10-15 13:14 冰冰凉凉2zb: 预算有限啊,不喜欢老房子,买不起洋房……
  • 2024-10-21 16:55 harry20191001: 很奇怪  好多TW人说喜欢高层。也许我们这边要很多的隐患去改善
爆料有奖!关注昆山论坛抖音号,抖音搜索“昆山论坛”,或搜索抖音号:ksbbs
 
离线青翼蝠王
发帖
15146
昆币
22006 枚
8楼 发表于: 2024-10-15 , 来自:江苏省0==
是的正解
楼中楼
  • 2024-10-15 12:06 青翼蝠王: 我是说不要碰高层,不是支持你买这个房子,别误会
  • 2024-10-15 13:11 冰冰凉凉2zb: 洋房买不起,房龄太老的又不想买,看着房子很多,能选择的却很少,说到底,还是钱不够多
爆料有奖!关注昆山论坛抖音号,抖音搜索“昆山论坛”,或搜索抖音号:ksbbs
 
帅哥离线83422布队
发帖
2501
昆币
3423 枚
9楼 发表于: 2024-10-15 , 来自:江苏省0==
开间太窄  乞丐房型 不建议买
爆料有奖!关注昆山论坛抖音号,抖音搜索“昆山论坛”,或搜索抖音号:ksbbs
 
快速回复
限76 字节
批量上传需要先选择文件,再选择上传
 
上一个 下一个