夜间模式
  • 22846阅读
  • 12回复

[百姓话题]1770万平!昆山这区域大起势 [复制链接]

上一主题 下一主题
离线闭眼听风
发帖
2787
昆币
45501 枚
只看楼主 使用道具 电梯直达
楼主  发表于: 04-11 , 来自:江苏省0==

猛料!

昆山这区域全新规划刚刚出炉


1770万平!昆山这区域新规划曝光

近日

中国昆山上公示

对高新区部分区域规划调整

👇

微信图片_20250407141759.png

微信图片_20250408135348.png


涉及腾退工业、新增学校用地

……

1770万平区域布局更新

赶紧来看看


01
编制范围


西至张家港河,东至汉浦塘-长江北路,南至北环城河,北至城北路。规划单元总用地面积17.70平方公里,全部位于城镇开发边界内。


新.png


02
空间结构


规划形成

“三带引领、水绿串城

多点提升、十片协同”

的空间格局


“三带引领”:中环产业发展带、萧林路综合服务带和北门路综合服务带;

“水绿串城”:张家港河、北环城河等在内的多条水绿生态廊道;

“多点提升”:城北商业服务核心、玉湖生态绿心及多个社区服务节点、产业服务节点;

“十片协同”:6个生活片区、1个产城融合片区、2个产业集中片区和1个综合服务片区


微信图片_20250407142354.png


03
规划方案


本次方案一是优化产业空间布局,推动产业用地提质增效,促进产业集聚与转型升级;二是推动低效产业用地退二进三,推进城中村更新与老旧小区改造,完善公共配套,提升城区景观风貌与空间品质;三是优化交通组织,完善市政公用设施,提升城市安全韧性。

微信图片_20250407142704.png

微信图片_20250407142729.png

微信图片_20250407142821.png


此次规划重点更新区域有3大片区

漕里浜片区、民营路片区、汉浦路片区


01
漕里浜片区

微信图片_20250407144817.png

对比规划前后具体变化

该区域多块工业用地腾退

林地、耕地及商业用地变更为

住宅用地和商务金融用地

值得一提的是

随着住宅面积增加

新增了中小学用地

和幼儿园用地


微信图片_20250407144453.png

用地现状图

微信图片_20250407144344.png

用地规划图



从此效果示意图上也能清楚看到

新增学校和幼儿园



除了新增的住宅地

周边还有不少小区

如方正名门、胜利新村、嘉兴苑

嘉和苑、胜利小区、尚城国际花园等

或许能享受到这波教育资源红利


微信图片_20250408095137.png


再加上多处商业金融用地

漕里浜片区未来将建设成为

集合教育、住宅、金融为一体的

综合型片区

太令人期待了~


02
民营路片区

微信图片_20250407152251.png


该区域大片一类工业用地腾退

规划为商业商务兼容用地

城镇住宅用地

15分钟社区生活圈综合公共服务设施用地


微信图片_20250407152738.png

用地现状图

微信图片_20250407152807.png

用地规划图




该片区原本的广福农贸市场所在地块

从商业用地变更为商业商务兼容用地

面积也扩大数倍

后续或将整体翻新升级也未可知


image.png

微信图片_20250407152237.png


03
汉浦路片区

微信图片_20250407153436.png


该片区内多块一类工业用地

更新规划为新型工业用地

15分钟社区生活圈综合公共服务设施用地

及住宅用地


微信图片_20250407154007.png

用地现状图

微信图片_20250407154029.png

用地规划图




惊艳蝶变!昆山这板块升值在即

除了以上3个片区

昆山高新区多个区域有新规划

如环玉湖区域

新增了住宅区、腾退工业用地

湖的东侧与南侧增加了

商业商务用地

更令人期待的是

还有一所全新学校即将落成

环玉湖区即将惊艳“蝶变”


微信图片_20250408140417.png

用地现状图

微信图片_20250408140442.png

用地规划图



图片

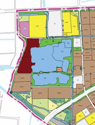
△ 环玉湖区域效果图


环玉湖区域由核心湖区、环广福片区(风雷河片区)、花园路片区、红杨路片区组成,突出“规、拆、改、建、优”,旨在以玉湖公园为核心,打造集聚科创办公、水乡文化、水岸商业、生态居住等多元功能于一体的复合功能区,规划结构为:




“一带一环,一轴两核,多片更新”

“一带”:张家港河城市更新带,以水为脉串联片区内的重要更新节点,推动“两水四岸”城市更新行动;

“一环”:张家港河、庙泾河、斜泾中心河构成的水润绿环,织补片区水乡生态本底;

“一轴”:由寰庆路、鹿城路、城北路组成的更新活力轴,纵贯南北串联玉湖、风雷河、花园路、红杨路等重要更新片区;

“两核”:玉湖产城升级核和鑫源-花园路文体服务核。


图片


未来的这里

交通网络日益完善

生态环境持续优化

教育资源不断丰富

生活配套愈加便利

一幅惬意生活的美丽画卷正徐徐展开


01
交 通


目前

鹿城路北延工程正在有序推进

工程竣工后将缓解区域交通压力

连接昆山高新区南北

有效完善环广福区域路网结构

为居民出行带来便利

项目计划2026年底竣工


图片
图片

△ 鹿城路北延大桥项目效果图

图片

△ 鹿城路北延大桥项目建设实拍图


广福路改造工程

以人性化的设计理念

打造一条安全、舒适的城市干道

提升道路通行品质

进一步优化交通服务体系


图片

△ 广福路改造工程项目图片


作为连接工业遗址公园与生活区的

步行桥项目

将为周边居民和通勤群体构建绿色步行通道

让绿色出行成为现实

项目还将设置服务功能

打造“可休憩的桥空间”

图片
图片
图片

△ 步行桥项目效果图


02
生 态


当前

为打造水乡文韵与工业文化融合一体的

城市会客厅

昆山高新区正加速推进

玉湖公园改造提升

张家港河生态廊道等项目

进一步丰富市民休闲游憩体验

和提升城市生态颜值


图片
图片

△ 玉湖公园改造提升效果图



玉湖公园一期、二期改造升级工程通过景观优化、设施完善、功能提升等系统性更新,实现“推窗见绿、出门入园”的美好生活图景,让市民在家门口就能享受到高品质的休闲空间。


图片
图片

△ 玉湖公园实景图



张家港河廊道沿河景观提升工程,打造一条集休闲、健身、观光于一体的怡人滨水绿廊。清澈的河水、葱郁的植被、盛开的繁花、蜿蜒的步道,构成了昆山城西一幅动人的生态画卷。


图片
图片
图片
图片

△ 张家港河生态廊道实景图


03
教 育


新建的鹿城小学

配备现代化教学设施

规划建设小学教学楼、食堂

综合楼、风雨操场、地下车库等

计划设置6轨36班

预留2轨12班

为区域教育发展提供有力支撑


图片

△ 鹿城小学效果图


04
公 园


玉湖南边

工业遗址公园初见雏形

这里将成为昆山

“运动+文旅+体育”的网红新地标

既留住了“工业乡愁”

更唤醒了城市专属记忆


图片



环广福区域规划中,风雷河片区以工业遗址公园为依托,以风雷河水街为骨架,融合商业、文化、休闲功能,提供完善配套、宜居社区、商务商办等多元业态,打造底蕴丰富、活力时尚的宜居生活区。

图片

△ 工业遗址公园改建项目效果图


05
商务金融


紧邻工业遗址公园的

鑫欣科创综合体

集聚研发中试、研发孵化、商务办公

会议展览中心、商业、公寓等业态

是昆山高新区和协鑫集团共同打造的

首个科创综合体项目


图片

△ 工业遗址公园改建项目实景图

图片

△ 鑫欣科创综合体项目实景图


作为串联学校、社区、玉湖公园

与工业遗址公园的活力枢纽

风雷河水街项目

通过滨水空间重塑与业态功能升级

打造集慢行通廊、滨水商业

文化展示、社区服务于一体的

城市生活新空间


图片

△ 风雷河水街项目效果图


昆山高新区作为全国首个

县级市国家级高新区

正在一步步优化布局

交通、教育、生态…

每一处更新都承载着对美好的追求

每一次改变都让幸福触手可及


从农田到郊区

到如今的宜居之地

这块土地正在以蓬勃之势

惊艳所有人!

扩散!

将这个好消息告诉更多人~


来源:智美昆高新、中国昆山

昆山论坛综合整理图片


本帖评分记录
一凡406 昆币 +1 -来自昆山论坛APP 04-12
苏亚雷斯 昆币 +1 -来自昆山论坛APP 04-12
wujun101 昆币 +1 -来自昆山论坛APP 04-11
123abc交通 昆币 +1 -来自昆山论坛APP 04-11
梦想,远方 昆币 +1 -来自昆山论坛APP 04-11
5条评分昆币+5
爆料有奖!关注昆山论坛抖音号,抖音搜索“昆山论坛”,或搜索抖音号:ksbbs
 
帅哥离线单手耍漂移
级别: 昆山新人
发帖
262
昆币
614 枚
沙发  发表于: 04-11 , 来自:江苏省0==
长篇大论,重点要说明的应该是接下来玉湖区域 新楼盘一个接一个。。。
楼中楼
  • 2025-04-12 00:16 徐抠抠6666王: 应该说是老城北工业区,新房不断
爆料有奖!关注昆山论坛抖音号,抖音搜索“昆山论坛”,或搜索抖音号:ksbbs
 
在线于笑风
发帖
5961
昆币
242 枚
板凳  发表于: 04-11 , 来自:江苏省0==
今年规划那么多啊?饼够大的,不知道什么时候落地。
爆料有奖!关注昆山论坛抖音号,抖音搜索“昆山论坛”,或搜索抖音号:ksbbs
 
帅哥离线颓废大叔
级别: 昆山新人
发帖
239
昆币
493 枚
地板  发表于: 04-11 , 来自:江苏省0==
大饼何时落地才是真,大饼吃多了噎得慌
爆料有奖!关注昆山论坛抖音号,抖音搜索“昆山论坛”,或搜索抖音号:ksbbs
 
帅哥在线梦想,远方
级别: 昆山新人
发帖
451
昆币
908 枚
4楼 发表于: 04-11 , 来自:江苏省0==
前进路啥时候能实现
楼中楼
  • 2025-04-11 11:56 sinicon: 领导们都忘了,你哪壶不开提哪壶
  • 2025-04-12 14:34 品鲜米粉: 马上换一届领导,PPT又重来了。百年以后还PPT而己
本帖评分记录
品鲜米粉 昆币 +1 -来自昆山论坛APP 04-12
sinicon 昆币 +1 -来自昆山论坛APP 04-11
2条评分昆币+2
爆料有奖!关注昆山论坛抖音号,抖音搜索“昆山论坛”,或搜索抖音号:ksbbs
 
发帖
1694
昆币
2137 枚
5楼 发表于: 04-11 , 来自:江苏省0==
加油大城北,期待早日落地开花
爆料有奖!关注昆山论坛抖音号,抖音搜索“昆山论坛”,或搜索抖音号:ksbbs
 
帅哥在线25xiaoli
发帖
8256
昆币
17447 枚
6楼 发表于: 04-11 , 来自:江苏省0==
  
爆料有奖!关注昆山论坛抖音号,抖音搜索“昆山论坛”,或搜索抖音号:ksbbs
 
离线缝缝补补
发帖
6961
昆币
874 枚
7楼 发表于: 04-11 , 来自:江苏省0==
城北地区迎来大开发了,未来10年,大变样啊。
爆料有奖!关注昆山论坛抖音号,抖音搜索“昆山论坛”,或搜索抖音号:ksbbs
 
帅哥在线123abc交通
级别: 昆山名人
发帖
69244
昆币
106734 枚
8楼 发表于: 04-11 , 来自:江苏省0==
给你们好好画饼
爆料有奖!关注昆山论坛抖音号,抖音搜索“昆山论坛”,或搜索抖音号:ksbbs
 
帅哥离线楚筏
发帖
636
昆币
834 枚
9楼 发表于: 04-11 , 来自:未知0==
北门路富士康地块整起来了,城北才会大变样
爆料有奖!关注昆山论坛抖音号,抖音搜索“昆山论坛”,或搜索抖音号:ksbbs
 
快速回复
限76 字节
如果您在写长篇帖子又不马上发表,建议存为草稿
 
上一个 下一个