夜间模式
  • 28208阅读
  • 16回复

[装修讨论]改造请教  ,那种更好 [复制链接]

上一主题 下一主题
帅哥离线sztj1999
级别: 昆山过客
发帖
36
昆币
56 枚
只看楼主 使用道具 电梯直达
楼主  发表于: 07-25 , 来自:江苏省0==
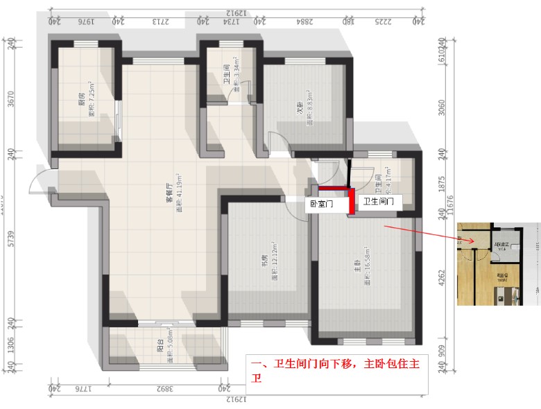
入户门对着卫生间门, 自己想了 2种方案,  如图,请教大家那种更好些。
爆料有奖!关注昆山论坛抖音号,抖音搜索“昆山论坛”,或搜索抖音号:ksbbs
 
发帖
5347
昆币
135 枚
沙发  发表于: 07-25 , 来自:江苏省0==
二选一,就一。
二的话,书房和卧室同时有人进出不方便
爆料有奖!关注昆山论坛抖音号,抖音搜索“昆山论坛”,或搜索抖音号:ksbbs
 
离线123012301230
发帖
12469
昆币
22668 枚
板凳  发表于: 07-25 , 来自:江苏省0==

卫生间斜着开门(棕色线条),1.8米床宽带2.1米,床头柜0.55米,房间4260-2100-550*2=1060,床两侧50CM起居,有点挤,建议床头柜买小号的,尽可能留足起居空间

衣柜(深0.58米)做床尾,3370-2100-580=690,这个空间起居够了,衣柜580已经很深了

衣柜长度考虑卫生间门,保持80CM过道
爆料有奖!关注昆山论坛抖音号,抖音搜索“昆山论坛”,或搜索抖音号:ksbbs
 
离线陆开旋
级别: 昆山新人
发帖
127
昆币
168 枚
地板  发表于: 07-25 , 来自:江苏省0==
第二种有点丑
爆料有奖!关注昆山论坛抖音号,抖音搜索“昆山论坛”,或搜索抖音号:ksbbs
 
发帖
5347
昆币
135 枚
4楼 发表于: 07-25 , 来自:江苏省0==
书房应该会是次卧,毕竟朝阳。两个卧室门挨在一起,肯定是不方便的。
爆料有奖!关注昆山论坛抖音号,抖音搜索“昆山论坛”,或搜索抖音号:ksbbs
 
帅哥离线sztj1999
级别: 昆山过客
发帖
36
昆币
56 枚
5楼 发表于: 07-25 , 来自:江苏省0==
回 123012301230 的帖子
123012301230:[表情]
卫生间斜着开门(棕色线条),1.8米床宽带2.1米,床头柜0.55米,房间4260-2100-550*2=1060,床两侧50CM起居,有点挤,建议床头柜买小号的,尽可能留足起居空间
衣柜(深0.58米)做床尾,3370-2100-580=690,这个空间起居够了,衣柜580已经很深了
....... (2025-07-25 14:37)

感谢回复  您太厉害了,
爆料有奖!关注昆山论坛抖音号,抖音搜索“昆山论坛”,或搜索抖音号:ksbbs
 
帅哥离线sztj1999
级别: 昆山过客
发帖
36
昆币
56 枚
6楼 发表于: 07-25 , 来自:江苏省0==
回 鸠羽千夜 的帖子
鸠羽千夜:书房应该会是次卧,毕竟朝阳。两个卧室门挨在一起,肯定是不方便的。 (2025-07-25 14:41)

我也是觉得,我选第一种,我老公非得喜欢第二
爆料有奖!关注昆山论坛抖音号,抖音搜索“昆山论坛”,或搜索抖音号:ksbbs
 
帅哥离线sztj1999
级别: 昆山过客
发帖
36
昆币
56 枚
7楼 发表于: 07-25 , 来自:江苏省0==
回 陆开旋 的帖子
陆开旋:第二种有点丑 (2025-07-25 14:39)

英雄所见略同
爆料有奖!关注昆山论坛抖音号,抖音搜索“昆山论坛”,或搜索抖音号:ksbbs
 
帅哥离线老老张
发帖
4024
昆币
7221 枚
8楼 发表于: 07-28 , 来自:江苏省0==
觉得原来的较合理,卫生间门在入户门后,在客厅适用性更好,改在和卧室对门不妥,要经常关门(上厕所,卧室都得关门)来客上上厕所也不便,(相对卧室的私密性)
爆料有奖!关注昆山论坛抖音号,抖音搜索“昆山论坛”,或搜索抖音号:ksbbs
 
帅哥离线sztj1999
级别: 昆山过客
发帖
36
昆币
56 枚
9楼 发表于: 07-28 , 来自:江苏省0==
回 老老张 的帖子
老老张:觉得原来的较合理,卫生间门在入户门后,在客厅适用性更好,改在和卧室对门不妥,要经常关门(上厕所,卧室都得关门)来客上上厕所也不便,(相对卧室的私密性) (2025-07-28 07:40)

嗯,谢谢。
爆料有奖!关注昆山论坛抖音号,抖音搜索“昆山论坛”,或搜索抖音号:ksbbs
 
快速回复
限76 字节
如果您在写长篇帖子又不马上发表,建议存为草稿
 
上一个 下一个