夜间模式
  • 11489阅读
  • 5回复

[装修讨论]慢生活|人间有味是清欢 [复制链接]

上一主题 下一主题
美女离线jingnian115
级别: 昆山过客
发帖
56
昆币
68 枚
只看楼主 使用道具 电梯直达
楼主  发表于: 2018-03-28 , 来自:江苏省0==
小区:合生国际花园
面积: 112 m2
风格:北欧or混搭
公司:水木源

前言:
原计划是2016.3月交房,早在之前就积极定好装当时大热的简美风。结果延迟了一年交房,我已移情别恋到北欧~~就是想要我的家简简单单干干净净,就是不想要过多装饰打扫不方便(天知道我每天都要拖地),就是想要我的家环保健康!装修之前各种研究材料,尽可能选择环保的,反而风格上装饰上没怎么下功夫。2017.3月底开工,7月中旬硬装结束,目前入住3个月!
此间感谢我的装修公司,整个过程没有一点不愉快,一点不让我操心,总是一个电话就来给我解决各种问题!
感恩,遇见好的人,遇见好设计!


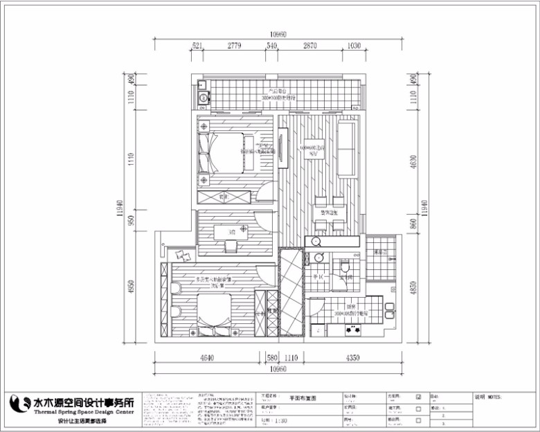
原始户型图及平面布置图:




整个户型改动不大,只是动了卫生间那一块。原有卫生间太小,把干区独立出来,然后把储物间改为淋浴室。

玄关:


原来的入户门是红棕色而且是内开,这完全不能忍!跟领居沟通后,入了这个中间带通风的大黑门,也算是解决了南北不通透的问题。原本想配指纹锁的,耐何整个装修已经超预算太多,以后再换吧!旁边的装饰画后面是电箱,电箱下面的距离刚好够配个同宽度的穿衣镜,这个地垫也是尺寸合适花色合适,一切都是刚刚好,完美~~


进入户门右手边是厨房,左手边是玄关柜!玄关柜不是常规的30cm深度,而是跟衣柜一样。我不喜欢穿过一次的衣物跟干净的衣物混合,所以基本上当季的外套都放置在玄关衣柜,相当实用。并且这么深的鞋柜就可以摆放双排的鞋子,收纳力也杠杠的!其他就没什么特别,就是个普通的玄关柜,哈哈哈~~




完整的玄关!忽视那略大的换鞋凳垫,我就是佛系买家我开心~~



厨房:


右手边的厨房,不算大还算够用。墙砖和地砖是同款,水槽是白鸟大单槽,下水口径超大的!冰箱是西门子多门的购于国美。


油烟机(18m3大吸力)、灶台是昆山樱花厂的。冰箱磁吸置物架是仿款,便宜又好用~~鸡蛋收纳盒也是很推荐的,干净卫生~


从厨房看玄关柜哈哈~我也是无聊


厨房最大的缺点就是没有明窗,这个半帘后面窗户是朝向淋浴房的!不过目前使用看来没什么玩问题,可能我饮食比较清淡也多炖煮的东西~~



橱柜特意留着一个位置没有封闭放一些不用放冰箱的食材,上面是拉篮放辣椒、生姜、蒜头之类的。
下面的塑料篮放一些土豆,白菜呀之类的很方便。


这个是小怪物,放置锅啥的很好用。厨房大的要是做个高柜上个大怪物拉篮那储物力杠杠的,我家是没地了,小伙伴们可考虑哈!

我家调味品拉篮是小号的那种,本身我家调味品也不多倒是够用。热爱做饭的小伙伴还是选择大一点的拉篮!


这个碗碟拉篮和调味拉篮都是悍高的。质量是不错,但是下层放盘子的架子用不了。盘子摆在架子上抽屉高度不够也是醉了。最后盘子只能平放了。


卫浴:


顺着方向,过了厨房门往南来是卫浴区了。这是干区全貌!
[attachment=4813003]

台盆柜是装修公司木工做的,没有选择一体的是为了配喜欢的台盆和龙头!
[attachment=4813006]

[attachment=4813005]
话说这两货是挺貌美的,贵我也就认了,为了颜值~~~龙头是可抽拉的且有水柱和花洒两种模式,喜欢在干区洗头发的小伙伴适用!台盆和日本KVK龙头购于近卫君。
[attachment=4813008]



[attachment=4813013]

入厕和淋浴区!
[attachment=4813016]

马桶和淋浴区只有一个门的宽度,所以没有用玻璃门,选择浴帘又经济又好打理,推荐!
[attachment=4813017]

当初做干湿分离,马桶有移位,为了防止日后出现马桶堵塞以及好看又方便打理(主要是颜值),选择的壁挂马桶。壁龛放点小东西很好。上层空间很多小储物盒里放些毛巾、女士的卫生用品以及备用的卫生纸都蛮好的。
[attachment=4813030]

[attachment=4813041]

[attachment=4813049]

[attachment=4813047]

[attachment=4813048]

[attachment=4813057]




[ 此帖被jingnian115在2018-03-28 10:01重新编辑 ]
本帖评分记录
纸哒煮 昆币 +1 - 2018-03-28
1条评分昆币+1
爆料有奖!关注昆山论坛抖音号,抖音搜索“昆山论坛”,或搜索抖音号:ksbbs
 
帅哥离线安居木门厂
级别: 禁止发言

发帖
3363
昆币
3278 枚
沙发  发表于: 2018-03-28 , 来自:江苏省0==
用户被禁言,该主题自动屏蔽!
爆料有奖!关注昆山论坛抖音号,抖音搜索“昆山论坛”,或搜索抖音号:ksbbs
 
美女离线纸哒煮
级别: 昆山名人
发帖
48764
昆币
110742 枚
板凳  发表于: 2018-03-28 , 来自:未知0==
不错不错

楼主留言:

谢谢谢谢

爆料有奖!关注昆山论坛抖音号,抖音搜索“昆山论坛”,或搜索抖音号:ksbbs
 
美女离线纸哒煮
级别: 昆山名人
发帖
48764
昆币
110742 枚
地板  发表于: 2018-03-28 , 来自:未知0==
不错不错
爆料有奖!关注昆山论坛抖音号,抖音搜索“昆山论坛”,或搜索抖音号:ksbbs
 
美女离线纸哒煮
级别: 昆山名人
发帖
48764
昆币
110742 枚
4楼 发表于: 2018-03-28 , 来自:未知0==
早安早安
爆料有奖!关注昆山论坛抖音号,抖音搜索“昆山论坛”,或搜索抖音号:ksbbs
 
级别: 禁止发言
发帖
574
昆币
581 枚
5楼 发表于: 2018-03-30 , 来自:江苏省0==
用户被禁言,该主题自动屏蔽!
爆料有奖!关注昆山论坛抖音号,抖音搜索“昆山论坛”,或搜索抖音号:ksbbs
 
快速回复
限76 字节
如果您在写长篇帖子又不马上发表,建议存为草稿
 
上一个 下一个