夜间模式
  • 90844阅读
  • 100回复

【叶氏·大美居整体软装】携手朗通,开启我的装修之旅 [复制链接]

上一主题 下一主题
发帖
598
昆币
1013 枚
只看楼主 使用道具 电梯直达
楼主  发表于: 2019-06-21 , 来自:未知0==
因叶氏举行装修日记大赛,故把帖子移步此处,欢迎大家围观指导!
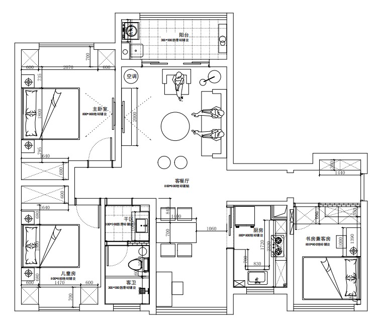
给大家看一下平面效果图

本帖评分记录
小李飞刀fly 昆币 +1 -来自昆山论坛APP 2019-12-11
中行装修贷 昆币 +1 -来自昆山论坛APP 2019-06-28
昆山封阳台 昆币 +1 -来自昆山论坛APP 2019-06-25
3条评分昆币+3
爆料有奖!关注昆山论坛抖音号,抖音搜索“昆山论坛”,或搜索抖音号:ksbbs
 
离线ldo

发帖
2020
昆币
611 枚
沙发  发表于: 2019-06-22 , 来自:江苏省0==
我要装修请联系我
爆料有奖!关注昆山论坛抖音号,抖音搜索“昆山论坛”,或搜索抖音号:ksbbs
 
离线朗通装饰
级别: 家装商家

发帖
16948
昆币
14157 枚
板凳  发表于: 2019-06-22 , 来自:江苏省0==
回 ldo 的帖子
ldo:我要装修请联系我 (2019-06-22 07:08)

您好,您是哪里的房子要装修呢?
有时间可以来我们公司咨询下,设计师会为您出一份详细的报价与方案。
爆料有奖!关注昆山论坛抖音号,抖音搜索“昆山论坛”,或搜索抖音号:ksbbs
 
发帖
6918
昆币
6420 枚
地板  发表于: 2019-06-24 , 来自:江苏省0==
关注了
【寅盛装饰无毒家装】装修不环保砸掉重做,昆山十年,口碑见证!
公司官网:[url][urlend2]
VR案例:[url][urlend2]
精品案例:[url][urlend2]
城东店:昆山市太湖路588号,左岸尚海湾3-103商铺 ( 近震川东路,阳光水世界对面 )


爆料有奖!关注昆山论坛抖音号,抖音搜索“昆山论坛”,或搜索抖音号:ksbbs
 
帅哥离线情相惜30206
发帖
826
昆币
717 枚
4楼 发表于: 2019-06-24 , 来自:江苏省0==
期待后续的装修更新
爆料有奖!关注昆山论坛抖音号,抖音搜索“昆山论坛”,或搜索抖音号:ksbbs
 
离线Edwin9903
发帖
1332
昆币
1485 枚
5楼 发表于: 2019-06-25 , 来自:江苏省0==
现在是什么装修进度呢?
爆料有奖!关注昆山论坛抖音号,抖音搜索“昆山论坛”,或搜索抖音号:ksbbs
 
发帖
671
昆币
744 枚
6楼 发表于: 2019-06-26 , 来自:江苏省0==
哈哈哈,互相学,我家已经开工了,但是更新比较慢
爆料有奖!关注昆山论坛抖音号,抖音搜索“昆山论坛”,或搜索抖音号:ksbbs
 
帅哥离线D.yan
发帖
6324
昆币
1318 枚
爆料
1
7楼 发表于: 2019-06-26 , 来自:江苏省0==
爆料有奖!关注昆山论坛抖音号,抖音搜索“昆山论坛”,或搜索抖音号:ksbbs
 
离线嫁不出去
级别: 昆山过客
发帖
31
昆币
35 枚
8楼 发表于: 2019-06-26 , 来自:江苏省0==
楼主赶紧更帖啊 等等等
爆料有奖!关注昆山论坛抖音号,抖音搜索“昆山论坛”,或搜索抖音号:ksbbs
 
离线迪卡佛
级别: 昆山新人
发帖
162
昆币
177 枚
9楼 发表于: 2019-06-26 , 来自:江苏省0==
楼主选的哪家装公司
爆料有奖!关注昆山论坛抖音号,抖音搜索“昆山论坛”,或搜索抖音号:ksbbs
 
快速回复
限76 字节
批量上传需要先选择文件,再选择上传
 
上一个 下一个