夜间模式
  • 41498阅读
  • 7回复

【实景案例】蔓延的中式暖意 [复制链接]

上一主题 下一主题
帅哥离线小装
级别: 昆山新人
发帖
102
昆币
169 枚
只看楼主 使用道具 电梯直达
楼主  发表于: 2019-10-02 , 来自:江苏省0==


「 藝 」




- 有光  有温度  更有感动  -
A space with light temperature and moving

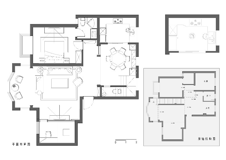
一楼平面图,plan




记得第一次到现场,项目已经水电结束;这个阶段选择按部就班施工的客人比比皆是,要重新改造平面格局的客人,为数不多;我们的初识和认可,也来自于平面方案的沟通。

本帖评分记录
弟子规 昆币 +1 -来自昆山论坛APP 2020-01-06
高小花花 昆币 +1 -来自昆山论坛APP 2019-10-25
小装 昆币 +1 -来自昆山论坛APP 2019-10-10
3条评分昆币+3
爆料有奖!关注昆山论坛抖音号,抖音搜索“昆山论坛”,或搜索抖音号:ksbbs
 
帅哥离线小装
级别: 昆山新人
发帖
102
昆币
169 枚
沙发  发表于: 2019-10-09 , 来自:江苏省0==


客厅实拍图



客厅小景



与客人合影,客人的满意就是我们每套作品的源动力和感动的地方,再接再厉。
爆料有奖!关注昆山论坛抖音号,抖音搜索“昆山论坛”,或搜索抖音号:ksbbs
 
美女离线ceciliaa
级别: 昆山名人
发帖
22370
昆币
7045 枚
板凳  发表于: 2019-10-10 , 来自:江苏省0==
我家原本美式,现在也换中式了。楼主的客厅效果图盗走了
爆料有奖!关注昆山论坛抖音号,抖音搜索“昆山论坛”,或搜索抖音号:ksbbs
 
帅哥离线小装
级别: 昆山新人
发帖
102
昆币
169 枚
地板  发表于: 2019-10-10 , 来自:江苏省0==
回 ceciliaa 的帖子
ceciliaa:我家原本美式,现在也换中式了。楼主的客厅效果图盗走了[表情] (2019-10-10 14:47)

虽然每个风格都有各自的特点,当然同样的客人,不管是美式还是中式,我相信所呈现的调性一定是一样的。
爆料有奖!关注昆山论坛抖音号,抖音搜索“昆山论坛”,或搜索抖音号:ksbbs
 
帅哥离线小装
级别: 昆山新人
发帖
102
昆币
169 枚
4楼 发表于: 2019-10-10 , 来自:江苏省0==

工地现场实拍


客人是一对能看见幸福模样的夫妻;男主人温文儒雅,女主人热情知性生活中的每一个小瞬间都充满了体贴与亲切!



客厅小景



电视背景墙做了一个隐形门设计





入户便是大理石背景搭配透光玉石玄关画


爆料有奖!关注昆山论坛抖音号,抖音搜索“昆山论坛”,或搜索抖音号:ksbbs
 
帅哥离线小装
级别: 昆山新人
发帖
102
昆币
169 枚
5楼 发表于: 2019-10-10 , 来自:江苏省0==
回 ceciliaa 的帖子
ceciliaa:我家原本美式,现在也换中式了。楼主的客厅效果图盗走了[表情] (2019-10-10 14:47)

对了我要TIP一下:我们发的图片都是现场实拍的,不是效果图,哈哈哈
爆料有奖!关注昆山论坛抖音号,抖音搜索“昆山论坛”,或搜索抖音号:ksbbs
 
帅哥离线小装
级别: 昆山新人
发帖
102
昆币
169 枚
6楼 发表于: 2019-10-11 , 来自:江苏省0==


餐厅实拍效果





厨房由于后期电气设备扩大,中途调整过一次橱柜方案,做了一个内凹造型,给出电器高柜的空间。






爆料有奖!关注昆山论坛抖音号,抖音搜索“昆山论坛”,或搜索抖音号:ksbbs
 
帅哥离线小装
级别: 昆山新人
发帖
102
昆币
169 枚
7楼 发表于: 2019-10-12 , 来自:江苏省0==
二楼上来是一个玄关,玄关后面是书房区域,为了将室内外进行融合,建筑一角我们做了一个室内水景观,在家就可以看花,看鱼儿嬉戏,也是生活一大乐趣。
本帖评分记录
小装 昆币 +1 -来自昆山论坛APP 2019-10-23
1条评分昆币+1
爆料有奖!关注昆山论坛抖音号,抖音搜索“昆山论坛”,或搜索抖音号:ksbbs
 
快速回复
限76 字节
如果您在写长篇帖子又不马上发表,建议存为草稿
 
上一个 下一个