
入·境
流光千年印古意 四壁浮影悟中采 袅袅熏香絮絮绕 诗词意境自然来
////
288㎡复式 四室四厅两卫两厨 风格定位:新中式 硬 装 设 计:印象水仙 软 装 设 计:印象水仙 施 工:印象水仙
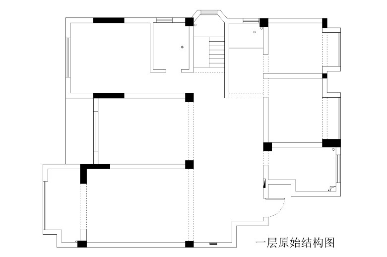
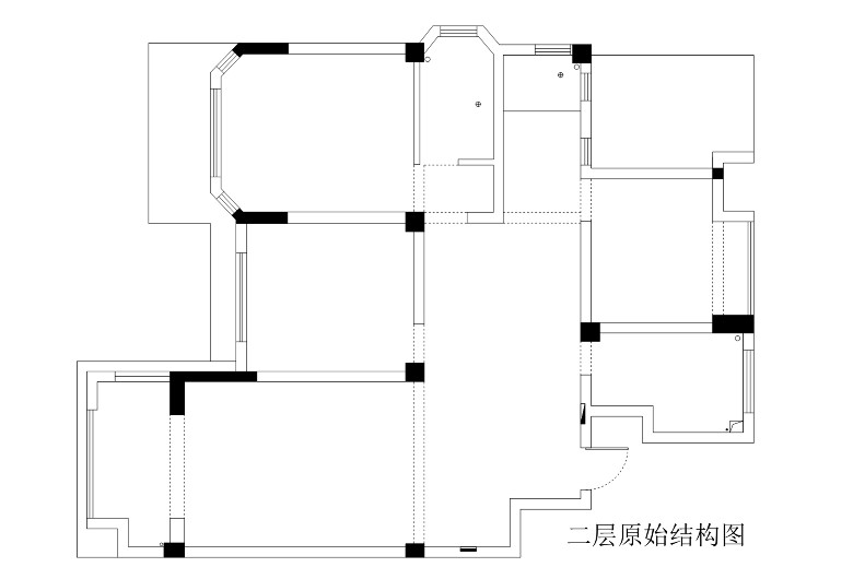
复式空间布置图 如下:






本案将楼上下两套一模一样的户型打通,其中一楼抛弃了原来的2个卧室,分别改为餐厅和西厨,最大化扩大了公共区域的开间及采光,而厨房的扩大充分满足了一家五口的烹饪需求。一楼为会客区域及父母短住。二楼为业主一家三口休闲居住。男主人从事于精密仪器设计,心思细腻、热爱健身有情调、为人幽默风趣。装修过程中,几乎所有的事都是男主人一手操办。女主人我全程只见过两次,优雅很有气质,有着所有女人梦想的生活姿态。他们的女儿即将进入大学生活。本案的设计元素提取了男主人中意的东方禅意、质朴大气、沉稳奢华,女主人的精致、质感,女儿的青春活力,一楼主要以禅意中式为主,二楼为无风格设计,共同形成当下下生活之艺术。 一层 三维彩图

二层 三维彩图

玄 关

玄关是定义整个家装气质的灵魂所在,艺术的圆形挂画,别致的竹松盆景,所有的精致都藏在这一幅属于“玄关”的诗意画里。过道宽敞,线条略显质感,令空间互通,大而不空,厚而不重。一器一物皆是景, 方寸之间显乾坤。

一 楼 客 餐 厅
附:三维彩图


原结构打通之后,客厅与餐厅开放式相连,邻接大面积的窗户,自然光的介入使整个空间敞亮而干净。


电视背景墙采用大面积的白水墨纹大理石,hold住整个公共区域的质感,如同东方破晓的天际,有一种白玉般的光泽和静谧。

客餐厅整体规划以大块处理,线条勾勒,沉稳的黑,静谧的蓝,素简的灰色,与散发迷人魅力的线条提升空间气质;身处此空间休息、品茶、娱乐无一不沁人心脾。

与碧水做邻居 寄情与山水之间

暖色灯饰平静而柔和,背景墙的黑色线条对蓝色山水画进行分割,丰富视觉效果,令其更加美观的同时,与地面波打线,顶面的线条相呼应,多了几分现代感与中式古典美的糅合。

红叶花艺的点缀,绿植端景的映衬,为空间更添一抹生机,生气悠长。
一 层 厨 房


舍弃掉原有的一个小卧室,组成了一个超大空间的中西厨,整体橱柜设计别有心机,十分前卫,使用一体化嵌入式冰箱、蒸箱、烤箱及微波炉,不仅提升了空间的饱和度与美感,也充分利用了空间的功能性,台面质感通透,方便日常使用打理,黑色门板的设计,在这里显得更是高级有质感。

一 层 父 母 房
附:三维彩图


父母房的设计延续了主题风格,“山”元素自然融入,人文的气息愈发浑厚,光影之间营造出意境深远的空间氛围,令人不自觉沉浸其中。
一 层 客 卧
附:三维彩图


客卧的色彩搭配令人感到惬意与放松,以求塑造出宁静的睡眠环境,再以白色的床品铺设其上,勾勒灵动空间,结合高精密面料的深蓝色窗帘,散发出隐隐的光泽感,能让空间更加明亮。

多功能空间,学兼休息,双重利用。
二 楼 客 厅
附:三维彩图


将二层朝南的一件卧室打造为一家三**流的私密会客厅,充足自然光引入室内,绿植的加入,不仅让空间显得更为通透,且为空间增添了一分拥抱自然、天然去雕饰的气质。墙面极简设计,通过蓝色布艺沙发、大幅装饰画,结合灯光赋予空间立体感及层次感,营造舒适慵懒的视听交流空间。
二 楼 休 闲 区
附:三维彩图

休闲区,紧邻茶水间,惬意的下午茶,三面都可以看见宽阔的阳台外景。

二 层 主 卧
附:三维彩图


主卧室是作为一个主要的呈现状态,抽象的山水画背景,冲撞着热烈的红色、沉稳的黑色,整体空间中,色调深浅有度,展现出一个自然随性的空间。


原结构中的玄关,改为隐藏式衣帽间,以浅色高级灰为主,干净利落的线条,十分具有品质感。

二 层 次 卧
附:三维彩图


这里如绿野仙踪一般精致梦幻,整体黄撞绿,青春活力,尤其置身热带雨林。

衣帽间和学区共享,空间设计的干净利落,营造了一个安静淡雅的学氛围。
|