夜间模式
  • 295130阅读
  • 110回复

我的婚房开工啦~携手大业美家共筑家美业大~ [复制链接]

上一主题 下一主题
离线蓝桉i
级别: 昆山过客
发帖
37
昆币
46 枚
10楼 发表于: 2020-06-04 , 来自:江苏省0==
最近工作是在太忙啦!!!都没有来更新
我给的承重墙出现了问题,设计师也帮忙在不影响我要的效果上做了修改,在装修过程中,细节的问题还是蛮多,重点在于大家一起沟通解决问题。问题发生了,不是推卸问题,否定问题的存在,而是应该拿出解决问题的方案,在此我还是很感谢我家设计师,始终保持初心,尽心尽力,在各个环节都很积极的处理问题,有的工作都不在她的责任范围内,她也能帮忙积极沟通解决。





爆料有奖!关注昆山论坛抖音号,抖音搜索“昆山论坛”,或搜索抖音号:ksbbs
 
离线蓝桉i
级别: 昆山过客
发帖
37
昆币
46 枚
11楼 发表于: 2020-06-06 , 来自:江苏省0==




















今天周末,好不容易有时间,就去突袭了一下工地
砸完墙的垃圾都处理了,干干净净的,感觉还可以吧!!!!期待后期
爆料有奖!关注昆山论坛抖音号,抖音搜索“昆山论坛”,或搜索抖音号:ksbbs
 
离线蓝桉i
级别: 昆山过客
发帖
37
昆币
46 枚
12楼 发表于: 2020-06-09 , 来自:江苏省0==
已经开始砌墙啦!!请大家忽略我这不专业的拍照技术










爆料有奖!关注昆山论坛抖音号,抖音搜索“昆山论坛”,或搜索抖音号:ksbbs
 
离线20428585
级别: 昆山新人
发帖
190
昆币
120 枚
13楼 发表于: 2020-06-10 , 来自:江苏省0==
蓝桉i:已经开始砌墙啦!!请大家忽略我这不专业的拍照技术
[图片]
....... (2020-06-09 14:11) 

砌墙的位置不是承重梁的位置吧?这样重量有点大吧
爆料有奖!关注昆山论坛抖音号,抖音搜索“昆山论坛”,或搜索抖音号:ksbbs
 
离线蓝桉i
级别: 昆山过客
发帖
37
昆币
46 枚
14楼 发表于: 2020-06-11 , 来自:江苏省0==
回 20428585 的帖子
20428585:砌墙的位置不是承重梁的位置吧?这样重量有点大吧 (2020-06-10 23:19)

不是的,
爆料有奖!关注昆山论坛抖音号,抖音搜索“昆山论坛”,或搜索抖音号:ksbbs
 
离线蓝桉i
级别: 昆山过客
发帖
37
昆币
46 枚
15楼 发表于: 2020-06-13 , 来自:江苏省0==
回 门窗小哥哥 的帖子
门窗小哥哥:楼主你好!封阳台,改窗子可以找我,谢谢 (2020-06-12 20:49)

       谢谢啦!目前装修公司给我推荐了几家,基本都定好啦!
爆料有奖!关注昆山论坛抖音号,抖音搜索“昆山论坛”,或搜索抖音号:ksbbs
 
离线蓝桉i
级别: 昆山过客
发帖
37
昆币
46 枚
16楼 发表于: 2020-06-13 , 来自:江苏省0==


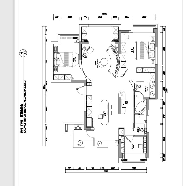
圆弧的形状现在基本出来了







最近天气好热,师傅们还在努力工作,真的是干哪行都不容易呀,最近大家都要注意防暑哦
爆料有奖!关注昆山论坛抖音号,抖音搜索“昆山论坛”,或搜索抖音号:ksbbs
 
美女离线蘑菇007
级别: 昆山过客
发帖
43
昆币
52 枚
17楼 发表于: 2020-06-13 , 来自:江苏省0==
很嗨啊啊
爆料有奖!关注昆山论坛抖音号,抖音搜索“昆山论坛”,或搜索抖音号:ksbbs
 
离线蓝桉i
级别: 昆山过客
发帖
37
昆币
46 枚
18楼 发表于: 2020-06-14 , 来自:江苏省0==
回 蘑菇007 的帖子
蘑菇007:很嗨啊啊 (2020-06-13 22:15)

目前来看我没有啥麻烦的事情,所以还可以,哈哈哈哈哈
爆料有奖!关注昆山论坛抖音号,抖音搜索“昆山论坛”,或搜索抖音号:ksbbs
 
离线蓝桉i
级别: 昆山过客
发帖
37
昆币
46 枚
19楼 发表于: 2020-06-19 , 来自:江苏省0==
我的弧形已经出来啦!!!










爆料有奖!关注昆山论坛抖音号,抖音搜索“昆山论坛”,或搜索抖音号:ksbbs
 
快速回复
限76 字节
如果您提交过一次失败了,可以用”恢复数据”来恢复帖子内容
 
上一个 下一个