大家好,第一次在论坛开贴,竟然不知如何开头,真的应了万事开头难的这句话哦!



从拿到新房钥匙的那天起,就一直期待着我家未来的样子,现在真的要开始装修了,想想还挺激动呢


其实我对装修是一窍不通,什么半包,全包,全案之类的完全不知道是怎么回事,打从开始考虑装修前前后后也对比了好几家公司,最后选择大业美家有两个原因:一是因为李老师的方案打动了我,她的设计即满足了我对家的所有幻想还考虑到了实用问题,二是因为他们家报价很透明,每一分钱花到哪里,都写的清楚明了,话说一入装修深似海,从此钱包是路人。像我这种装修小白报价透明这一点还是很打动我的,都说装修是一段神奇的经历,其中包含了各种酸甜苦辣,接下来我就和大家慢慢分享我这段神奇经历吧!!

2020年5月27日4点18分
我们开工啦~
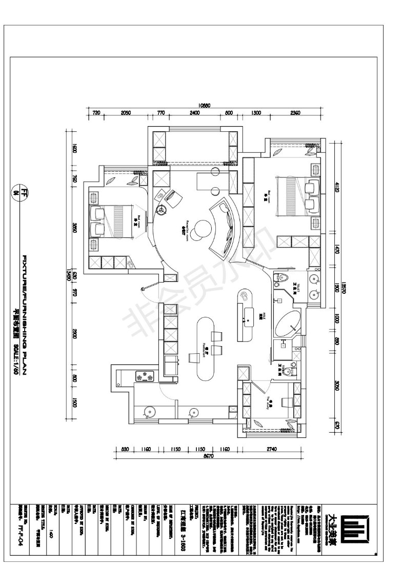
我比较喜欢大胆创新的设计,我认为我既然找设计师设计了,就是想要一些别具一格的设计,如果遵规循矩的话我感觉我自己都可以来设计了

基本上我们家能拆的地方差不多都拆了,李老师把客厅这一块设计成了一个弧形,与沙发结合起来给人感觉像一个圆,象征圆圆满满的意思,我真的是太喜欢这块啦!我都迫不及待的想看到我们家的落地效果了


我对我们家装修要求相对还是挺高的,也希望这次的装修之旅合作愉快。后面会持续更新哒~希望大家多多给我提意见哦!
[ 此帖被蓝桉i在2020-05-28 16:00重新编辑 ]