夜间模式
  • 7218阅读
  • 3回复

[装修]新作还没发布,先看看老作吧,这是一套经济实用的装修风格 [复制链接]

上一主题 下一主题
帅哥离线印象水仙设计
级别: 家装商家
发帖
11306
昆币
19355 枚
只看楼主 使用道具 电梯直达
楼主  发表于: 2021-02-20 , 来自:江苏省0==


清新北欧风住宅 美是隐匿的和谐


面积 / 120㎡
风格 / 现代北欧风
户型 / 三室两厅一厨两卫
硬装设计 / 印象水仙
软装设计 / 印象水仙  
施工单位 / 印象水仙





本案是屋主买的二手房,对于装修,他们偏向于现代北欧风,因为这里是夫妻养老的地方,儿子跟儿媳也会偶尔来住;屋主对家里的装修想法还是偏年轻化的,加上屋主儿子每次都跟屋主一起参与家里的装修设计、施工、主材选购、软装,这使得设计师与家人之间的互动更加默契,屋主非常满意最终的完工效果,非常愉快的一次合作哦。


因为屋主喜欢简约放松的生活空间,所以设计师在空间布局上设计师做了些许改动,最大限度引入自然光,使得内外通透,在视觉及感官上为空间主人呈现明亮清爽的生活空间。


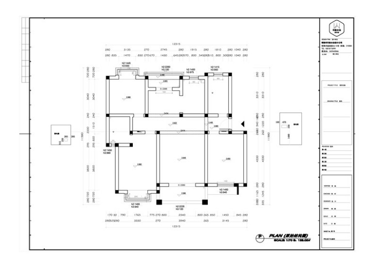
>> 原始结构图 <<




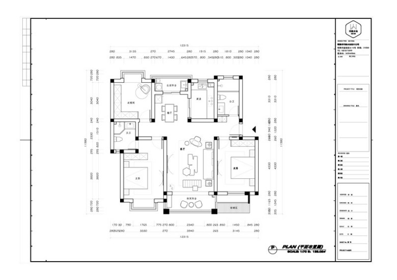
>> 平面布置图 <<





客   厅









白色为基础色调,整个客厅都散发出平静简约的味道,白色与木色的组合,是简单和美好的相遇。沙发背景的三幅绿植壁画,洋溢着自然和生机。






阳台与客厅之间的门洞扩大了,让光线肆意弥漫。深灰色的沙发和黄色的单人躺椅,让纯净的白色空间清新恬静。






电视背景上下收纳柜的设计,便于主家摆放书籍和物品等,简约大方。









餐   厅






原木餐厅的设计,足以诠释温暖与舒适。一日、三餐、四季,日子在烟火气中慢慢流淌。


过   道






整体空间,自由而单纯,简单纯粹的感觉油然而生,非常适合屋主养老居住。


厨  房






较为宽裕的空间可以最大程度上满足屋主下厨需求,原木色的加入也让厨房氛围温和起来。

主   卧






主卧暖色调与暖光源同样带来柔和舒适的质感,温柔的米色窗帘、粉色床饰配合原木色为北欧风平添一份温馨感。






次   卧






次卧是留给儿子儿媳偶尔来居住的,整体设计也是偏向简约,一方天地,依旧白色,打造简约素雅的睡眠空间,灰色点缀,平添空间质感,给予居者一份随意的轻松感,原木色依旧温暖。


卫 生 间




卫生间色调黑白灰,干净简约,完美契合空间主人喜欢的空间调性。
本帖评分记录
zhuo685667 昆币 +1 -来自昆山论坛APP 2021-02-20
1条评分昆币+1
爆料有奖!关注昆山论坛抖音号,抖音搜索“昆山论坛”,或搜索抖音号:ksbbs
 
帅哥离线印象水仙设计
级别: 家装商家
发帖
11306
昆币
19355 枚
沙发  发表于: 2021-02-20 , 来自:江苏省0==
想知道他们家装修价格,辅材清单的,可以加金钟微信哦,欢迎装修咨询啦。
爆料有奖!关注昆山论坛抖音号,抖音搜索“昆山论坛”,或搜索抖音号:ksbbs
 
离线喃喃有话
级别: 昆山过客
发帖
40
昆币
62 枚
板凳  发表于: 2021-02-21 , 来自:江苏省0==
这家多少钱装的
本帖评分记录
印象水仙设计 昆币 +1 -来自昆山论坛APP 2021-02-21
1条评分昆币+1
爆料有奖!关注昆山论坛抖音号,抖音搜索“昆山论坛”,或搜索抖音号:ksbbs
 
帅哥离线印象水仙设计
级别: 家装商家
发帖
11306
昆币
19355 枚
地板  发表于: 2021-02-21 , 来自:江苏省0==
喃喃有话:这家多少钱装的 (2021-02-21 09:47) 

全部搞下来18万左右哦
爆料有奖!关注昆山论坛抖音号,抖音搜索“昆山论坛”,或搜索抖音号:ksbbs
 
快速回复
限76 字节
如果您在写长篇帖子又不马上发表,建议存为草稿
 
上一个 下一个