案例信息
Case information
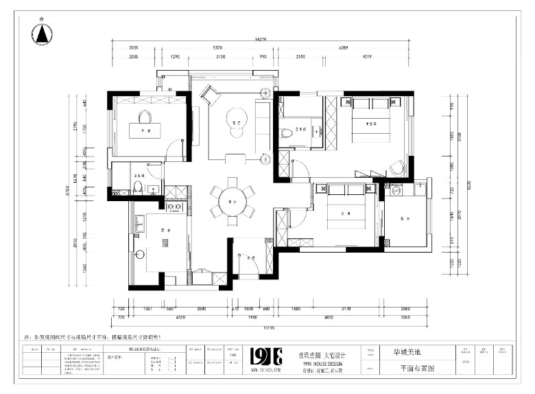
项目地址| Project address:昆山#美地华城面积|Square Meters:137m2
风格|Style:现代风格
设计|Designer:全案设计师·郝长歌材料|Material:柔光瓷砖、乳胶漆、石膏板、免漆板施工单位|Construction unit:昆山壹玖壹捌装饰设计 原始结构图&平面布置图
Original Structure Chart&Planar Scheme
客户需求
Customer demand
为儿子准备的婚房,儿子目前在学做西餐,所以家里面需要中厨和西厨的功能,同时客户的儿子喜欢黑白灰和无主灯设计的现代风格。
客餐厅
The restaurant

客厅以经典黑白灰为主色调理性干练是空间主人偏爱的设计调性。客、餐厅中间有一根下吊38公分的梁,是客户比较在意的点,后期无主灯吊顶结合灯条的设计不仅弱化了突出的梁,更点缀了整个空间。
一个有生命的空间,应该承载着故事,为人们编织出一个或鲜衣怒马或宁静如潭的理想之地。极具代表黑白灰的极简生活,在空间中流动。
▲扫码观看全景▼