夜间模式
  • 9506阅读
  • 1回复

[装修]兰亭御园127两个不同风格的装修 [复制链接]

上一主题 下一主题
帅哥离线1918设计
级别: 禁止发声
发帖
9059
昆币
10185 枚
只看楼主 使用道具 电梯直达
楼主  发表于: 2021-03-05 , 来自:江苏省0==
兰亭御园127户型风格大比
案例信息
Case information


项目 | Project address:昆山#兰亭御园
面积 | Square Meters:280m2
风格 | Style:现代&简美
设计 | Designer:郝长歌&杨同社

材料 | Material:柔光瓷砖、乳胶漆、石膏线、免漆板
施工 | Construction unit:昆山壹玖壹捌装饰设计
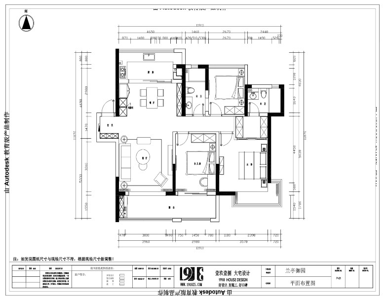
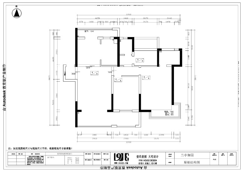
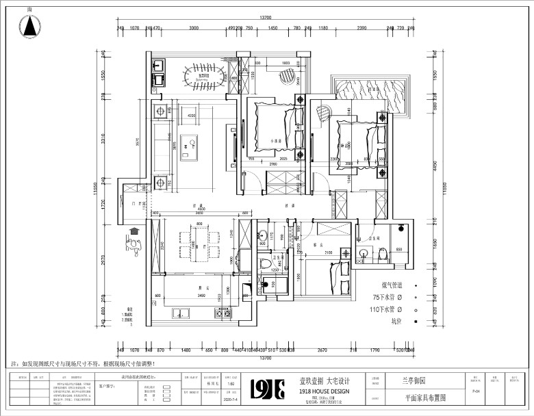
原始结构图&平面布置图

Original Structure Chart&Planar Scheme


现代风(设计师:郝长歌)


简美风(设计师:杨同社)


风格上面,一个是大多数人喜欢的现代风格,简单的配色让人感觉眼前非常亮堂;另一个是简美风,在美式风格的基础上进行了改动
现代·客餐厅
The restaurant




厨房南移,原餐厅客厅位置互换。客餐厅空间变大,入户左厨右厅的既视感非常舒服。现代风格的立体感和轮廓比较深邃和立体,几何线条的布局,空间构图简洁不累赘。

▲扫码观看全景▼




简美·客餐厅
The restaurant

  
墙面用简单的石膏线条来做层次,配以一定的色系。家具用简美的家具,深色系的家具较耐看。空间计划、色彩运用、原料的选择,都突出了精约又大气的风格。



▲扫码观看全景▼




爆料有奖!关注昆山论坛抖音号,抖音搜索“昆山论坛”,或搜索抖音号:ksbbs
 
帅哥离线1918设计
级别: 禁止发声
发帖
9059
昆币
10185 枚
沙发  发表于: 2021-03-06 , 来自:江苏省0==
    
爆料有奖!关注昆山论坛抖音号,抖音搜索“昆山论坛”,或搜索抖音号:ksbbs
 
快速回复
限76 字节
如果您提交过一次失败了,可以用”恢复数据”来恢复帖子内容
 
上一个 下一个