夜间模式
  • 7558阅读
  • 1回复

[装修]法式风441㎡别墅四层完工,健身房、私人影院,都全的哦 [复制链接]

上一主题 下一主题
帅哥离线印象水仙设计
级别: 家装商家
发帖
11306
昆币
19355 枚
只看楼主 使用道具 电梯直达
楼主  发表于: 2021-04-03 , 来自:江苏省0==




整个空间结构为三层别墅加一个地下活动室,设计从屋主喜欢的浪漫法式风展开,精致的软硬装展现着摩登奢雅的美感,于沉静中酝酿着富饶的活力,又在清透优雅的视觉中汇聚着内敛谦和的美式温润气质。


从下面的户型图空间可以看出屋主的品味与设计师方案的精致度,因原始户型略有不足,设计师也做了大面积的改造和调整,期望从空间流动性入手,给予空间主人平和舒适的居住空间。



--------------------------

项目面积 | 441㎡
项目风格 | 法式风
项目户型 | 别墅四层
设计单位 | 印象水仙
施工单位 | 印象水仙

--------------------------

合 影






-1F - 地下室/原始平面图




负一层空间有影音室、休闲区、保姆房,还记得当时设计师测量时,这里光线很暗,后期的改造设计中,加入了很多灯光设计,让整个空间温暖起来;屋主想要休闲空间,想要放松,都在汇聚在负一层空间。


-1F - 地下室/平面布置图






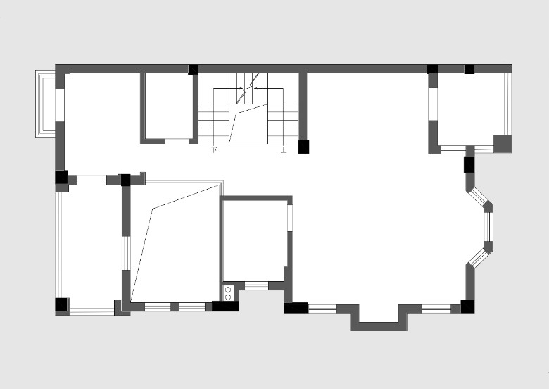
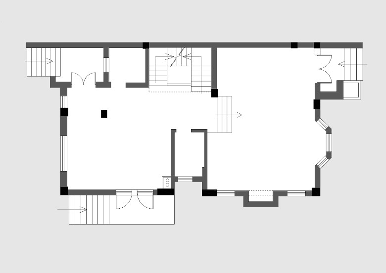
1F - 一楼/原始平面图





结合原始和彩图,可以看出部分墙体被拆除,使得一层整体的格局被打开,采光问题自然而然被解决。客餐厅之间设计为台阶式,保留了空间动线的流畅性也让区域划分更为鲜明,加入的岛台无形中提升闲适感,配合扩大的厨房。


1F - 一楼/平面布置图






2F - 二楼/原始平面图





二楼居住房间有儿子房(衣帽间)、客房,书房三个房间;儿子房空间相对较大,平面彩图可以看出改动很大,重新的布局让每个空间布局更加合理。


2F - 二楼/平面布置图







3F - 三楼/原始平面图






三楼有主卧、书房、储物休闲区、主卫,屋主的私人空间,一体式家居配置一应俱全。


3F - 三楼/平面布置图





1F-Hallway






玄关的存在让家更有仪式感,进门此情此景,令人赏心悦目。


-1F-Corridor






随廊道而下,复古元素的碰撞,肆意流露出典雅却轻奢的气质,造型独特的酒红色边几搭配墨绿色绒布单人椅,给灰白的世界带来色彩的冲击。


-1F-Video Room





影音室营造出了悠闲、惬意且高级的居住氛围,巨大幕布+投影让观赏体验很舒服,柔软的皮质沙发,平时窝在这里看场电影,轻松惬意。






1F-Living Room





聚焦客厅,空间被刻画成一幅轻盈、优雅、随性的视觉画面。四周墙面以柔和的浅色大面积渲染,没有喧宾夺主的强势,在起到提亮视线效果的同时,抚慰居者情绪,归还生活一份淡然与安宁。





精致细腻的处理在空间优雅递进,时髦的镜面装饰、灵动的水晶吊灯、浪漫的黄色窗帘,再到布艺与皮质的碰撞融合,对于空间各元素的拿捏,轻易地便营造出高级的模样,华丽的形象立刻丰满起来。





沙发的背后是客厅另一处品味生活的迷人视角,两张单椅、一个茶几、一副艺术壁画,结合精心摆放的装饰品共同编织层次间的错落美感。





壁炉燃起旁边摆放的羽毛落地灯,渴望的温情如约而至。






1F-Dining Room






脚步轻移,优雅气息蔓延至餐厅,方型的镜面吊顶成为空间的视觉焦点,搭配精致的圆桌和餐椅;再看拼色造型满满的地砖与灰色质感的餐边柜,将对未来生活的无限遐想,定格在静好宜人的空间里。







望向西餐区,中岛吧台的设置让素净雅致的空间多了一层社交性,增加了家人之间的互动。日后屋主休闲式烹饪,真正体验宅家生活的自在魅力。









餐厅跟西厨中间,设计师用灰玻隔开,保证采光,让空间更为通透,无实墙也给人轻盈的感觉。





1F-Kitchen





厨房延续整体的高级感,黑色台面和浅色柜体的自然纹理进行对比融合,质感展现无遗。同时也便于清洁卫生,使空间更显整洁清爽。

2F-Son's Bedroom






大面积落地窗,窗帘选用蓝色+黄色的搭配,精致的水晶吊灯,床头以宝石蓝的配色提亮空间;简洁的线条和光线,再结合高品质的家具,整体打造出一个宁静雅致的休憩空间。








拉开移门,步入独立式衣帽间、休息区、卧室依次串联,合理的动线牵引,使各功能区域独立且联通,在这里,有私享,亦有交流;有独立,亦有融合;有温暖,亦有浪漫。





这里,属于个人的私享时光。





这里的每个角落都充满仪式感,休息区延伸至开放式的学空间,给孩子提供休憩、阅读、放空的场所,给予孩子自由的心境和放松的身心...










2F-Study






极富造型感的吊灯,充满复古意味;经典的胡桃色书桌和柜体搭配黑色玻璃,书香韵味足足,墙面选用竹子壁画,寓意满满。


2F-Guest Bedroom






客卧选用自然纹理的电视背景墙,米色皮质家具配上黄色床饰,为居室注入一丝清新的气质。


2F-Toilet



爵士白墙砖选择错落的铺贴,搭配蓝色复古花纹的地砖,黑色淋浴房结合黑色洗面台+带金属边的大方镜,烘托出一个简约优雅的画面。


3F-Master Bedroom







阳光轻洒,留下一缕自由的味道,延伸到室内。




梦幻的粉色硬包背景墙结合浅灰色硬包,简约的造型,活泼中透露着优雅,以美好的姿态编织关于成长的各种遐想。













避开华丽装饰的堆砌,从简约灯饰、床品,再到墙面的细腻纹理,都在极力展现沉静而不失童真的空间氛围。








3F-Study






羽毛吊灯、书柜、书桌等一系列装饰都是以浅色调为主,一抹艳丽的酒红色搭配一副大尺寸的斑马壁画,唤醒了屋主工作的激情。






3F-Leisure Area






步入储物休闲区,不仅是存放衣物鞋包的功能空间,更是每个女性心中摆放品味、存储气质的梦想空间。极简的外壳,灰蓝色的柜体内有序陈列精美的战利品,绚丽与稳重相互衬托,将质感无限放大。


3F-Toilet






双台盆下打造充裕的收纳柜台,实用性与美感度都在进一步提升;选择摩登色彩的黑白墙地砖,加入金色点缀,满满的高级时尚感。


Stairs




楼梯是步移间的流动艺术,台阶、转角,至走廊的尽头,游移在场景之间,一步一景,景景生辉。


爆料有奖!关注昆山论坛抖音号,抖音搜索“昆山论坛”,或搜索抖音号:ksbbs
 
离线muque864659
级别: 昆山新人
发帖
208
昆币
274 枚
沙发  发表于: 2021-04-05 , 来自:江苏省0==
好大一房子,买不起
爆料有奖!关注昆山论坛抖音号,抖音搜索“昆山论坛”,或搜索抖音号:ksbbs
 
快速回复
限76 字节
批量上传需要先选择文件,再选择上传
 
上一个 下一个