|
|
楼主 发表于: 2021-10-04
, 来自:江苏省0==
YXSX DESIGN 2021
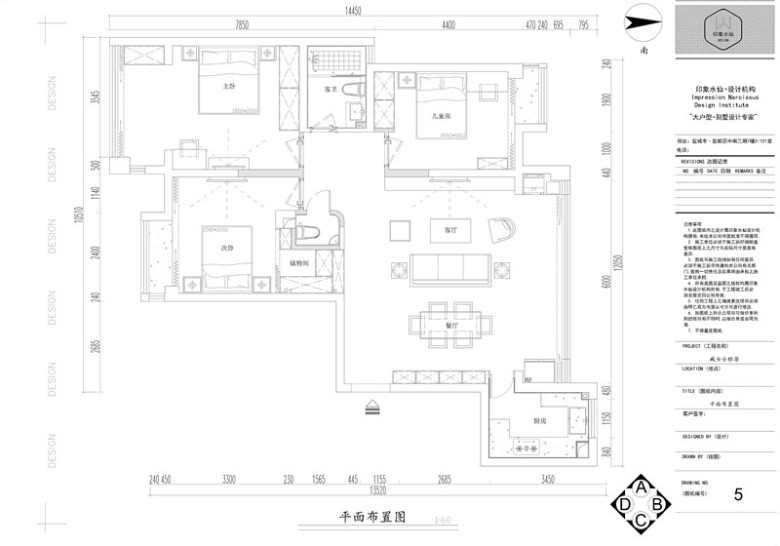
 128㎡现代风三室两厅两卫设计单位 | 印象水仙施工单位 | 印象水仙 理想生活在此处Ideal life is here

从空空如也的毛坯房,到处处即景的艺术美宅,一处别具格调的理想居所,历经格局的优化改造,再到每一处装饰细节的精雕细琢,终于在这个秋天完美落地。 在本案全案项目的打造中,设计师通过空间的色彩层次与艺术韵律相互映衬,将女主追求的优雅气质与现代的简约高级极致演绎,让生活的每一处场景皆定格在清透温馨的画面之中。 四口之家的生活是一个幸福的话题,屋主一家三口带老人同住这里,设计师在充分考量业主生活需求的基础上,以实用主义为核心,精准把握空间的装修需求,同时将私人的品味与生活情趣融入空间,用心装饰生活的微小细节,在理想的生活环境下,记录下生活每个怦然心动的瞬间。

 客 餐 厅THE RESTAURANT 翻开家的扉页,客餐厅是一章饱含温度与情感的诗篇,几分现代居所的高级大气,混合些许艺术美宅的闲情雅趣,不同的材质相互搭配,通过肌理与质感的融合,收与放之间,组构成向往生活的场景。

 进门右侧一排定制木作柜子集展示收纳于一体,大面积落地窗让客餐厅显得更通透,沙发与大理石茶几组合以其线条与曲面的互搭,巧妙而和谐;无主灯的设计让灯光亮起的瞬间,层层散开的光晕总能将你一秒带入温柔且舒适的情景里。

 过道一面极简定制立柜赋予空间充足的收纳功能,内设隐藏式的灯带,营造无处不在的高级感。
 岩板电视背景墙搭配同色系地台,融入灯带、格栅的设计,将纯净通透的格调展示得淋漓尽致。
 红酒、烛光,玫瑰花瓣随意洒落在茶几上,将气质和品位含蓄地展现出来。

 开放式空间设计让客餐厅保持互通,布局有序精致,家具线条错落流畅。
 餐厅的酒柜设计在空间非常提气质,三餐四季说的就是这个空间的日常,灰与白,千鸟格与金属,这些元素的碰撞,是设计师的小心思,也给这个空间带来几分生趣。

阳 台BALCONY 阳台打通,延展了客餐厅空间,扩大家人活动空间的同时,视野也被无限放大;功能区整洁的布局,为空间保留一份整洁清爽的生活气息。
 闲暇时刻,靠坐在灰色布艺沙发或地毯上,一本杂志、一杯咖啡就可以慵懒一整个午后。 过 道CORRIDOR
 过道尽头,一副韵味十足的艺术装饰画在香槟色的背景墙面上魅力十足;伴着愉悦的心情穿梭于过道,近景远景都有美的存在。 主 卧MASTER BEDROOM
 延伸到卧室,阳光透过白纱洒进来,香槟色融入低饱和度的浅咖色,整体莫兰迪色系让空间既保留干净,利落的氛围,也能提升整个空间的精致度。

 摩登又不失优雅的设计直观地表达了生活态度和个性,金色主灯和壁灯搭配浅色家居,在车水马龙的城市,给予主人一处具有艺术气质的休憩之所。
 留一隅之地用来学习,时光静好。

儿 童 房KIDS ROOM
 梦幻蓝儿童房,是自由与梦想绘成的成长空间。简约舒适的格局下,室内一切陈设从童真出发,将孩子的活泼、幻想转化为室内设计的灵感,丰富的童趣装饰,让空间一步步生动起来。

外 卫 1WASH ROOM 1 这个卫生间不是套房内的,却是女主个人最爱的洗漱区域,粉色墙面如同奶油般温柔细腻,碰撞局部波点设计,搭配白色卫浴为简单的空间基调注入梦幻少女的灵魂。

外 卫 2WASH ROOM 2
 这个卫生间偏中性风,简约的洗漱台让一切归于自然,在这样一种解压的气氛中,获得回归自我的感受。
|