楼主未婚独居,不想再继续租房,所以在今年六月份买下了一套面积48平的小户型住宅,前期做了很多准备工作,在风格方面想要素雅简洁风,于是找朋友设计了施工图纸,并且前期在网上做了很多很多功课。总结下来就是,要清楚了解自己的日常生活需求和生活习惯,与设计师充分沟通,这样拿到的图纸才能细致,毕竟自己才是最懂自己的人。
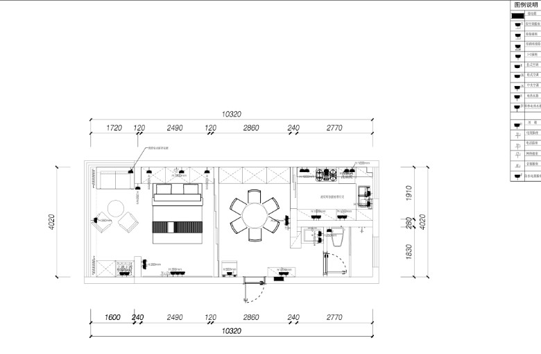
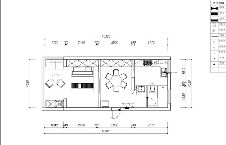
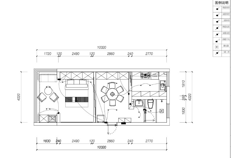
先上一张平面设计图,虽然户型很小,但还是做了干湿分离的卫生间,洗手台,马桶,淋浴三区分开;厨房调换了方向,原本灶台进门靠右换成了左;平时喜欢在卧室看投影,所以把衣柜位置移动到了客厅,冰箱也放在了客厅,洗衣机和烘干机放在了阳台以上是大致的一个布局。
图纸完成之后,就是找装修公司报价的阶段,结合自己的预算,找了四家公司报价,最后选择了林师傅装修团队,八月底启动装修,由于工作前期比较忙,最近空闲所以来mark一下。

[ 此帖被枯荷听雨在2021-10-13 09:53重新编辑 ]