夜间模式
  • 125947阅读
  • 43回复

新居变形记 [复制链接]

上一主题 下一主题
美女离线木木耳
级别: 昆山过客
发帖
15
昆币
21 枚
只看楼主 使用道具 电梯直达
楼主  发表于: 2021-11-06 , 来自:江苏省0==
从交完首付开始关注装修,到拿房一个月前开始接触装修公司,发现现在装修无论是价格还是工艺都和我们几年前装第一套房很不一样了.
       我们老公周末花了几天泡在月星好家居,了解了一部分材料品牌和价格定位,在这期间我们定了第一个装修材料-地板,参加了大自然工厂店活动,在活动氛渲染中,一不小心就下单了,定了自己在店里相中的一款新品多层实木地板,真的是始于颜值终于颜值,只因为喜欢这款颜色.
      

本帖评分记录
垂丝逸影 昆币 +1 -来自昆山论坛APP 2022-03-19
中南小何 昆币 +1 -来自昆山论坛APP 2021-11-09
昆山伟宏门窗 昆币 +1 -来自昆山论坛APP 2021-11-08
荣盛门窗 昆币 +1 -来自昆山论坛APP 2021-11-07
木木耳 昆币 +1 -来自昆山论坛APP 2021-11-06
5条评分昆币+5
爆料有奖!关注昆山论坛抖音号,抖音搜索“昆山论坛”,或搜索抖音号:ksbbs
 
美女离线木木耳
级别: 昆山过客
发帖
15
昆币
21 枚
沙发  发表于: 2021-11-06 , 来自:江苏省0==
我们选择11/6开工,10:08开工大吉!
因疫情管控,老公回不来,只能我这女汉子拿金锤来敲墙了.
因周末工人不能干活,今天只办了一下仪式,真正开工需要等周一了.
而我下一步要定窗了,感觉窗子现在是真心贵啊,之前的房子我记得才280元一平,而现在断桥铝移窗都得翻倍的价,更不要说系统窗了. 这几天也要趁着双十一能把改定东西都定了,感觉任务好艰巨啊. 给自己加个油吧!
爆料有奖!关注昆山论坛抖音号,抖音搜索“昆山论坛”,或搜索抖音号:ksbbs
 
美女离线木木耳
级别: 昆山过客
发帖
15
昆币
21 枚
板凳  发表于: 2021-11-06 , 来自:江苏省0==
木木耳:我们选择11/6开工,10:08开工大吉!
因疫情管控,老公回不来,只能我这女汉子拿金锤来敲墙了.
因周末工人不能干活,今天只办了一下仪式,真正开工需要等周一了.
而我下一步要定窗了,感觉窗子现在是真心贵啊,之前的房子我记得才280元一平,而现在断桥铝移窗都得翻倍的价,更不要 .. (2021-11-06 23:41) 

论坛小白还没摸索会论坛发帖模式,中间好长一段找不到了
爆料有奖!关注昆山论坛抖音号,抖音搜索“昆山论坛”,或搜索抖音号:ksbbs
 
美女离线木木耳
级别: 昆山过客
发帖
15
昆币
21 枚
地板  发表于: 2021-11-07 , 来自:江苏省0==
补中间一段:
在我们定了地板后我们都没有想好我们是找装修公司装?全包还是半包?还是要自己挑战一下自装,虽然从定房后有时间就在刷住小帮,抖音,小红书,看各种装修介绍,但是还是怕半调子钱花了一堆问题、毕竟装修是个大工程,很多细节需要不同工种的协作,所以最后决定专业的事交给专业的人.找装修公司尽量全包.

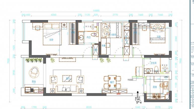
我家房子三房二卫,一直困扰的两个问题:1.入户玄关位置怎么设计,可以感觉不堵.2.冰箱放哪里?因为厨房太小,所以想把冰箱搬出厨房,一直在门口和餐厅位置调换,最后选择了设计师建议,原本想做冰箱柜固定,先不做,目前定入户玄关处做隔断后方放冰箱,餐边柜和沙发中间预留冰箱插座,所以冰箱位置没算完全定下来,目前是灵活的,等实际进场后来定,而此两次预留修改空间.
我们是在10月最后一天定的装修公司,最终选择了蛮好德签订了装修合同,其实从接触的几家装修公司,他们算接触较晚的,但是设计师小伙子很热情,很配合,沟通起来很舒心. 从价格对比来说,他们也不是最贵也不是最便宜,只能说是合适的,还是那句话,每一次选择都是缘分,希望自己的选择没有错.接下来装修的点点滴滴需要靠他们了.
爆料有奖!关注昆山论坛抖音号,抖音搜索“昆山论坛”,或搜索抖音号:ksbbs
 
美女离线木木耳
级别: 昆山过客
发帖
15
昆币
21 枚
4楼 发表于: 2021-11-07 , 来自:江苏省0==
发图好难
爆料有奖!关注昆山论坛抖音号,抖音搜索“昆山论坛”,或搜索抖音号:ksbbs
 
美女离线荣盛门窗
级别: 禁止发言

发帖
7737
昆币
8552 枚
5楼 发表于: 2021-11-07 , 来自:江苏省0==
用户被禁言,该主题自动屏蔽!
爆料有奖!关注昆山论坛抖音号,抖音搜索“昆山论坛”,或搜索抖音号:ksbbs
 
美女离线荣盛门窗
级别: 禁止发言

发帖
7737
昆币
8552 枚
6楼 发表于: 2021-11-07 , 来自:江苏省0==
用户被禁言,该主题自动屏蔽!
爆料有奖!关注昆山论坛抖音号,抖音搜索“昆山论坛”,或搜索抖音号:ksbbs
 
发帖
6918
昆币
6420 枚
7楼 发表于: 2021-11-07 , 来自:江苏省0==
恭喜楼主开工大吉
欢迎关注
【寅盛装饰无毒家装】装修不环保砸掉重做,昆山十年,口碑见证!
公司官网:[url][urlend2]  
VR案例:[url][urlend2]
精品案例:[url][urlend2]  
城东店:昆山市太湖路588号,左岸尚海湾3-103商铺 ( 近震川东路,阳光水世界对面 )
昆山城北店:昆山市柏庐北路94号( 柏庐大桥向北200米左右 )

爆料有奖!关注昆山论坛抖音号,抖音搜索“昆山论坛”,或搜索抖音号:ksbbs
 
离线dahuamao8
发帖
729
昆币
1067 枚
8楼 发表于: 2021-11-07 , 来自:浙江0==
恭喜恭喜,开工大吉
爆料有奖!关注昆山论坛抖音号,抖音搜索“昆山论坛”,或搜索抖音号:ksbbs
 
帅哥离线左尚明舍
级别: 昆山新人
发帖
283
昆币
341 枚
9楼 发表于: 2021-11-07 , 来自:江苏省0==
开工大吉!
爆料有奖!关注昆山论坛抖音号,抖音搜索“昆山论坛”,或搜索抖音号:ksbbs
 
快速回复
限76 字节
如果您在写长篇帖子又不马上发表,建议存为草稿
 
上一个 下一个